Ház
Origó
HázOrigoval pont a központban

Hajdú-Bihar megye, Debrecen


 

Ingatlan adatai

Irányár: 72 900 000 Ft
Típus: lakás (újépítésű)
Kategória: eladó
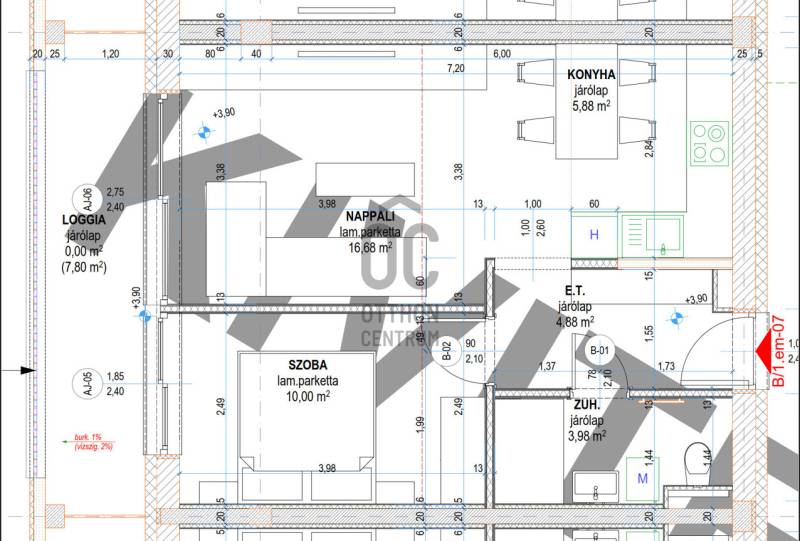
Alapterület: 41 m2
Fűtés: -
Állapota: új
Szobák száma: 2
Építés éve: 2025
Szintek száma: -

Részletes leírás

Ez az ingatlan az \" B \" épület .1. emeletén található.Projekt bemutatásaDebrecen belvárosában, 76 lakásos társasház épül. Az építkezés folyamatban van, várható átadása : 2025 év vége.A kivitelező - tulajdonos megbízható, korrekt cég, nagyon sok referenciával rendelkezik.Nagyon modern \" kis \" lakópark a belvárosban, nagy odafigyeléssel, minőségi anyagokból készül, előtérbe helyezve a leendő tulajdonosok kényelme.Jellemzői :- 76 db lakás + 8 üzlethelyiség - hőszivattyús hűtés - fűtés, lakásonként egyedi mérővel- szigetelt külső falazat- hőszigetelt nyílászárók- magas energetikai hatékonyság, alacsony rezsi- liftes társasház- teljes beépítetlen terület parkosított- közlekedő utak, járdák térkővel burkolva- gépjármű tárolása épületen belül, pinceszinten megoldott- szakaszos fizetés- stb.......Minden kedvezmény igénybe vehető, pl : CSOK, kedvezményes CSOK hitel, 5% ÁFA visszatérítés CSOK vásárlás esetén, stb...Mindent is nem tudok leírni, de amennyiben felkeltettem az érdeklődését, kérem hívjon bizalommal, és átbeszéljük.

További adatok

Telekterület: -
Kert mérete: -
Erkély mérete: 8 m2
Felszereltség: -
Parkolás: -
Kilátás: udvari
Egyéb extrák:  
-

Hirdető adatai

Hirdető neve: Otthon Centrum
Kapcsolattartó: Tóth Ferenc
Hirdető telefonszáma: +36 70 716 9076
Honlap: -