Ház
Origó
HázOrigoval pont a központban

Borsod-Abaúj-Zemplén megye, Tiszabábolna


 

Ingatlan adatai

Irányár: 19 900 000 Ft
Típus: ház
Kategória: eladó
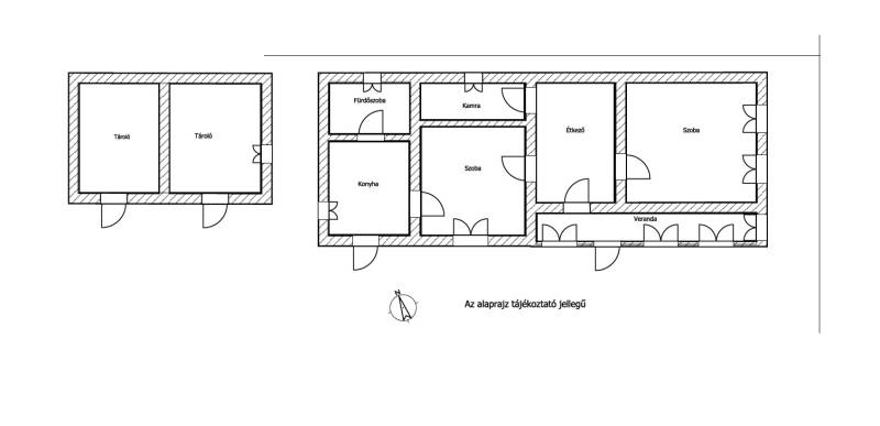
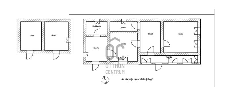
Alapterület: 86 m2
Fűtés: gáz (konvektor)
Állapota: -
Szobák száma: 2
Építés éve: 1935
Szintek száma: -

Részletes leírás

A Tisza-parti Tiszabábolna nyugodt és barátságos részén kínáljuk eladásra ezt a földszintes, verandás családi házat, amely egy 1500 m²-es, két utcára nyitott, megosztható telken helyezkedik el. Az ingatlan ideális választás lehet családoknak, befektetőknek, vagy mindazoknak, akik a vidéki nyugalmat keresik, miközben fontos számukra a közeli szolgáltatások elérhetősége.A ház vályogból készült, masszív szerkezete jó állapotú, a hangulatos veranda pedig a nyugodt, természetközeli életérzést biztosít. Az ingatlanban két tágas szoba, egy jól kialakított konyha, kamra és fürdőszoba található. A különálló melléképület kisméretű téglából épült, és két nagy tárolóhelyiséget kínál, amelyek akár műhelynek, akár egyéb tárolási célra is hasznosíthatók.A ház minden közművel rendelkezik: víz, gáz, villany és csatorna is be van kötve, így az ingatlan azonnal lakható, de akár korszerűsíthető is, ha szükséges. A telek területének köszönhetően pedig a ház környezetében rengeteg hely áll rendelkezésre kertészkedéshez, pihenéshez, vagy további építkezésekhez.A település környezete csendes és rendezett, ideális választás mindazoknak, akik szeretnének elvonulni a város zajától, ugyanakkor nem akarnak elszakadni a szükséges infrastruktúrától. A környéken számos nevezetesség és szolgáltatás várja az új lakókat. A település a Tisza-folyó partján fekszik, így könnyedén élvezhetjük a vízitúrák, horgászat és természetjárás nyújtotta lehetőségeket. Tiszabábolna közvetlen közelében található a helyi madárrezervátum is, amely a természet kedvelőinek igazi paradicsoma, ritka madárfajokkal és csodálatos tájakkal.Tiszafüred mindössze 25 percnyi autóútra van, ahol számos további szolgáltatás, piac, strand és termálfürdő is várja az érdeklődőket.Ez az ingatlan tehát ideális választás mindazok számára, akik egy csendes, mégis jól megközelíthető helyen szeretnének ingatlant vásárolni, és értékelik a természet közelségét, miközben minden szükséges szolgáltatás elérhető közelségben van. Legyen szó családi otthonról, nyaralóról vagy befektetési lehetőségről, ez az ingatlan mindenképpen figyelemre méltó lehetőség!További információért és megtekintésért hívjon bizalommal!

További adatok

Telekterület: 1 500 m2
Kert mérete: 1 500 m2
Erkély mérete: -
Felszereltség: -
Parkolás: -
Kilátás: -
Egyéb extrák:  
-

Hirdető adatai

Hirdető neve: Otthon Centrum
Kapcsolattartó: Langné Kiss Piroska
Hirdető telefonszáma: +36 70 716 9891
Honlap: -