Részletes leírás
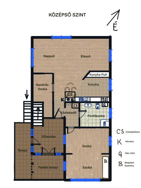
Eladásra kínálunk egy különleges panorámás ingatlant Balatongyörök szívében!-A 200 négyzetméteres lakóterület és a 2067 négyzetméteres telek bőséges helyet biztosít, hogy mindenki megtalálja a számításait. -Az ingatlan öt tágas szobával és három fürdőszobával rendelkezik, így ideális nagyobb családok számára is. - Az alsó szinten található egy szauna, amely saját fürdőszobával és hálószobával ellátott. -A nappali világos és barátságos, a beépített bútorok és szekrények pedig nemcsak praktikusak, hanem esztétikai szempontból is emelik az otthon hangulatát. -A 20 négyzetméteres teraszról gyönyörű tóra néző kilátás nyílik, ami egyedülálló élményt nyújt a reggeli kávézásokhoz vagy a családi összejövetelekhez. A ház fűtése gáz cirkó rendszerrel történik, míg a hűtésről klíma gondoskodik, így az év bármely szakában kellemes hőmérsékletet biztosít. A kandalló nemcsak a fűtés hatékonyságát növeli, hanem romantikus hangulatot is teremt a hűvösebb estéken. -A két szint külön almérővel felszerelt, így mind az albérleti, mind a szobáztatási vagy társasházasítási lehetőség is azonnal adott. -Az ingatlanhoz tartozik két garázs férőhely, amely kényelmes parkolást biztosít. Ezen kívül egy jól felszerelt boltíves tégla építésű borospince is ár részét képzi.-A környék ellátottsága kiváló, a közlekedési csomópont közelsége pedig megkönnyíti a mindennapi közlekedést. -A ház körbejárható. Tetőszerkezete, szigetelése (5 cm hungarocell), statikai állapota hibátlan.-A telek bővítési lehetőséget is kínál, így ha szeretné, saját igényei szerint alakíthatja tovább az ingatlant. -Több pontból is látható a balatoni panoráma.-Az ingatlan tehermentes, így azonnal birtokba vehető. -A LED hangulatvilágítás és az integrált szúnyoghálók, illetve redőnyök tovább növelik az otthon kényelmét és funkcionalitását. Ha Ön olyan ingatlant keres, amely nemcsak egy otthon, hanem egy életstílus is, akkor ez a ház tökéletes választás lehet Önnek. Kérjük, ne habozzon, keressen bizalommal, amennyiben további kérdései lennének, vagy szeretné megtekinteni ezt a különleges ingatlant!