Ház
Origó
HázOrigoval pont a központban

Szabolcs-Szatmár-Bereg megye, Beregdaróc


 

Ingatlan adatai

Irányár: 13 500 000 Ft
Típus: ház
Kategória: eladó
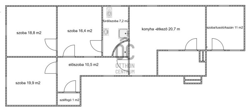
Alapterület: 97 m2
Fűtés: gáz (konvektor)
Állapota: -
Szobák száma: 3
Építés éve: 1970
Szintek száma: -

Részletes leírás

Beregdaróc csendes és barátságos településén kínálunk eladásra egy kivételes lehetőséget, amely ideális választás lehet családok számára. Az ingatlan nettó 97 nm alapterületű, három tágas szobával rendelkezik, így bőséges teret biztosít az otthonos életvitelhez. A fürdőszoba tusolóval , sarokkáddal rendelkezik, amely minden igényt kielégít. A ház állapota jó, így azonnal költözhető, a fűtésről gázkonvektor illetve vegyestüzelésű kazán gondoskodik, amely gazdaságos megoldást jelent a téli hónapokban. A nagy udvar ideális helyszín lehet gyermekek számára a játékra, vagy akár kertészkedésre is. Itt még hosszan lenyúló melléképületek találhatóak , mögötte diófákkal beültetve.A ház elhelyezkedése kiváló, hiszen a környék csendes, biztonságos, így a nyugodt életvitel kedvelőinek is ideális választás. Beregdaróc közlekedési lehetőségei is kedvezőek, a település jól megközelíthető autóval, de a tömegközlekedés is biztosított, így a közeli városok könnyen elérhetők. Kérdés esetén hívjon!

További adatok

Telekterület: 2 892 m2
Kert mérete: 2 892 m2
Erkély mérete: -
Felszereltség: -
Parkolás: -
Kilátás: -
Egyéb extrák:  
-

Hirdető adatai

Hirdető neve: Otthon Centrum
Kapcsolattartó: Gyöngyösi Sándor
Hirdető telefonszáma: +36 70 469 3486
Honlap: -