Ház
Origó
HázOrigoval pont a központban

Budapest, VIII.kerület


 

Ingatlan adatai

Irányár: 79 000 000 Ft
Típus: lakás (tégla)
Kategória: eladó
Alapterület: 66 m2
Fűtés: elektromos
Állapota: -
Szobák száma: 3
Építés éve: 1920
Szintek száma: -

Részletes leírás

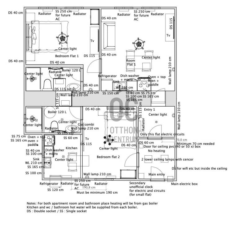
A lakásról:Eladó Budapest belvárosában, a Nagy Fuvaros utcában, egy földszinti, 66 m²-es ingatlan, amely két különálló apartmanra lett frissen átalakítva és teljes körűen felújítva.-Az apartmanok gépesítettek és berendezéssel együtt eladóak. -Az 1. apartman egy 1 szobás, a ház csendes belső udvarára néz. - A 2 apartman a ház mögötti udvarra néző ablakaival, szintén nyugodt környezetet biztosít az ott lakóknak. Itt egy nappali és egy háló található, tágasabb elrendezésű, amely akár egy kisebb családnak is tökéletes lehet.-(a kisebb apartmanban a munkálatok még nem fejeződtek be, a fényképeken a 2 szobás apartman látható)Az ingatlan azonnal költözhető vagy kiadható állapotban van.A házrólA társasház rendezett, csendes, a lakóközösség barátságos. A földszinti elhelyezkedés ideálissá teszi az ingatlant idősebbek vagy mozgáskorlátozottak számára is, ugyanakkor airbnb vagy hosszú távú kiadásra is vonzó opció lehet a könnyű megközelíthetőség miatt.A környékrőlA VIII. kerület folyamatosan fejlődő, dinamikus része, kiváló közlekedéssel: villamos, metró és buszmegállók néhány percre találhatók. A közelben található:-Corvin-negyed, Rákóczi tér-Vásárcsarnok, boltok, éttermek-Szent Kozma Józsefvárosi orvosi rendelőintézet-Egyetemek, irodaházak-Parkok és kulturális intézményekEz a terület különösen népszerű a fiatal bérlők, diákok és turisták körében.Miért jó befektetés?- Két külön bejáratú lakrész – külön is kiadható, magas hozam-Frissen felújított – nincs szükség további ráfordításra-Airbnb-re (Ezzel kapcsolatban telefonon tudok bővebb információt adni) vagy hosszú távú kiadásra is alkalmas-Központi elhelyezkedés – gyorsan bérbe adható-a két apartman almérőórákkal rendelkezik. Egyedi igényekre szabott lakáshitelekkel állunk rendelkezésére. Bankfüggetlen Hitel Centrumunk az országban elérhető összes bank és hitelintézet ajánlatát versenyezteti az Ön számára díjmentesen.Munkatársaink nagy szakmai tapasztalattal várják Önt az előre egyeztetett időpontban akár a normál munkaidő után is. Bővebb információért és a megtekintéssel kapcsolatban hívjon bizalommal!

További adatok

Telekterület: -
Kert mérete: -
Erkély mérete: -
Felszereltség: -
Parkolás: -
Kilátás: udvari
Egyéb extrák:  
-

Hirdető adatai

Hirdető neve: Otthon Centrum
Kapcsolattartó: Sós Gabriella
Hirdető telefonszáma: +36 70 461 9481
Honlap: -