Ház
Origó
HázOrigoval pont a központban

Pest megye, Cegléd


 

Ingatlan adatai

Irányár: 69 900 000 Ft
Típus: ház
Kategória: eladó
Alapterület: 100 m2
Fűtés: gáz (konvektor)
Állapota: -
Szobák száma: 3
Építés éve: 1975
Szintek száma: -

Részletes leírás

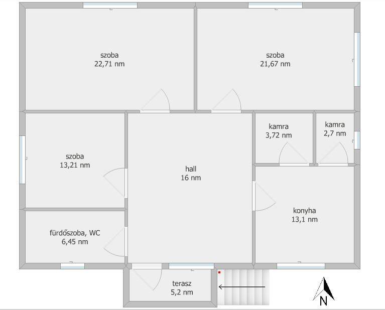
BELVÁROS KÖZELI CSALÁDI HÁZ CEGLÉDEN!Főbb jellemzők:- telekméret: 754 nm- lakótér: 99,5 nm- 3 különnyíló szoba (parkettásak)- konvektoros fűtés + a hallban kandalló- fa nyílászárók redőnnyel (részben cserélt)- cseréptető- klíma- kamerás kapucsengő- 2 garázs ( 1 közvetlen az utcáról)- rendezett udvar; hatalmas, árnyékot adó diófával- melléképületekJól megépített, masszív téglaház. Közelben iskolák, bevásárlási lehetőség, étterem, autómosó.Ha hirdetésem felkeltette figyelmét, hívjon mielőbb! Nézzük meg együtt!A hirdetésben szereplő információk a megbízótól kapott adatok alapján készültek,pontosságukért felelősséget nem vállalunk! Irodánkban teljes körű ügyintézéssel,ingyenes, bankfüggetlen hiteltanácsadással várjuk!

További adatok

Telekterület: 754 m2
Kert mérete: 754 m2
Erkély mérete: 5 m2
Felszereltség: -
Parkolás: -
Kilátás: -
Egyéb extrák:  
-

Hirdető adatai

Hirdető neve: Otthon Centrum
Kapcsolattartó: Kovács-Nagy Zsófia
Hirdető telefonszáma: +36 70 716 8861
Honlap: -