Ház
Origó
HázOrigoval pont a központban

Borsod-Abaúj-Zemplén megye, Tiszabábolna


 

Ingatlan adatai

Irányár: 39 900 000 Ft
Típus: ház
Kategória: eladó
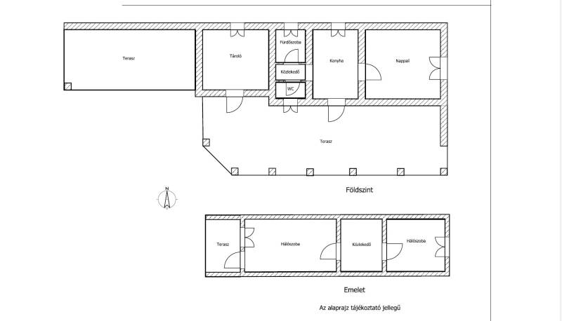
Alapterület: 107 m2
Fűtés: -
Állapota: -
Szobák száma: 3
Építés éve: 1950
Szintek száma: -

Részletes leírás

Tiszabábolna legcsendesebb utcájában eladó egy hatalmas felújított, tornácos parasztház, jakuzzis hátsó épített fedett grillterasszal, új kemencével, sparhelttal, ezen felül pedig egy 60m2es tágas tornáccal.A nagy teraszokhoz, nagy ház is dukál, a ház bruttó alapterülete 130m2, nettó hasznos alapterülete 107 m2, teljes berendezéssel, akár azonnali birtokbavétellel kihagyhatatlan lehetőséget kínál!A ház egy ideig a családnak, később már fizető vendégeknek is pihenőül szolgált, jelenleg érvényes szálláshely engedéllyel, szinte új bútorokkal, berendezésekkel és burkolatokkal keresi azt, aki ugyanolyan szeretettel használná, vagy üzemeltetné tovább, mint a tulajdonosok. Itt újra lehet írni a napokat, visszavenni a tempóból, vagy akár egy új fejezetet indítani.Egy hely, ahol a természet és a nyugalom kézen fogva sétálnak. Tiszabábolna egy csendes, festői tiszai település Borsod-Abaúj-Zemplén vármegyében, amely ideális választás azok számára, akik nyugodt, természetközeli életre vágynak. A község a Tisza-part közelsége miatt kedvelt horgász- és vízitúra célpont, emellett a környék kiváló lehetőségeket kínál túrázásra, kerékpározásra, strandolásra vagy akár vadászatra is.A falu hangulata békés és barátságos, a helyi közösség összetartó. A közbiztonság kiváló. A nagyobb városok – Mezőkövesd, Tiszafüred – autóval rövid idő alatt elérhetők. A közelben található a Tisza-tó is, amely nagyszerű turisztikai lehetőségeket kínál, legyen szó pihenésről, aktív kikapcsolódásról vagy természetfotózásról.

További adatok

Telekterület: 1 394 m2
Kert mérete: 1 394 m2
Erkély mérete: 83 m2
Felszereltség: -
Parkolás: -
Kilátás: -
Egyéb extrák:  
-

Hirdető adatai

Hirdető neve: Otthon Centrum
Kapcsolattartó: Langné Kiss Piroska
Hirdető telefonszáma: +36 70 716 9891
Honlap: -