Ház
Origó
HázOrigoval pont a központban

Pest megye, Nagytarcsa


 

Ingatlan adatai

Irányár: 119 900 000 Ft
Típus: ház
Kategória: eladó
Alapterület: 147 m2
Fűtés: gáz (cirko)
Állapota: -
Szobák száma: 4
Építés éve: 1984
Szintek száma: -

Részletes leírás

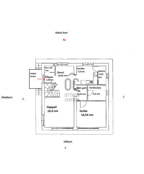
Nagytarcsán csendes mellékutcában kínálunk megvásárlása egy 796 nm-es összközműves telken álló alápincézett+ két lakószintes önálló családi házat. A földszinten a fedett teraszról nyílik a bejárat, ahol a tágas, csupa napfény nappali (kelet-délkeleti tájolású), kényelmes méretű étkező, konyha, kamra, egy nagy hálószoba, fürdőszoba és egy külön mellékhelyiség került kialakításra. Modern, mai igényeknek megfelelő belső elosztás, tágas, rendkívül világos helyiségek. Az emeletre kényelmes lépcső vezet, ahol két nagy hálószoba (egyik teraszos), és egy nagy kádas fürdőszoba kapott helyet. A fürdőszoba a két hálószoba között helyezkedik el, mindkét szobából közvetlenül megközelíthető. A lakóépület alatt több helyiségből álló nagy szuterén található, itt garázs, kazánház, tárolók vannak, a lakásba a belső lépcsőn juthatunk fel. A ház 2000-ben nyerte el mai formáját, ekkor lett bővítve a tetőtérrel. A nyílászárók cserélve lettek korszerű műanyag ablakokra redőnyökkel és szúnyoghálóval felszerelve, a fűtést egy korszerű turbós kombi cirkó biztosítja, de rendelkezésre áll egy szinte új vegyes tüzelésű kazán is. A tetőt beton cserép fedi, a kertben 3 autó számára fedett beálló lett kialakítva. A környék csendes, csupa zöld, buszmegálló, bevásárlási lehetőség pár perces sétával elérhető.

További adatok

Telekterület: 796 m2
Kert mérete: 796 m2
Erkély mérete: 16 m2
Felszereltség: -
Parkolás: -
Kilátás: -
Egyéb extrák:  
-

Hirdető adatai

Hirdető neve: Otthon Centrum
Kapcsolattartó: Sipos Zoltánné
Hirdető telefonszáma: +36 70 469 3031
Honlap: -