Ház
Origó
HázOrigoval pont a központban

Budapest, IX.kerület


 

Ingatlan adatai

Irányár: 98 900 000 Ft
Típus: lakás (tégla)
Kategória: eladó
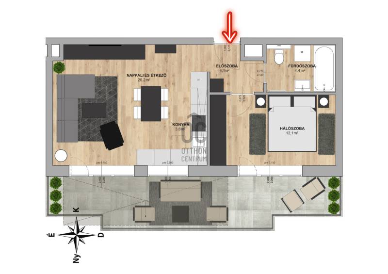
Alapterület: 45 m2
Fűtés: -
Állapota: -
Szobák száma: 2
Építés éve: 2017
Szintek száma: -

Részletes leírás

A IX. kerület egyik legkedveltebb részén, a Mester utcához közel eladó egy rendkívül világos, csendes és igényes lakás, 2017-ben átadott, modern, hőszivattyús fűtéssel és hűtéssel rendelkező társasház 4. emeletén. Az ingatlan 45,47 m²-es alapterülettel és egy 19 m²-es, városi panorámás terasszal rendelkezik, amely tökéletes helyszínt biztosít a pihenésre. Ha egy nyugodt, mégis központi elhelyezkedésű igényes lakást keres, akár befektetésként, akár saját célra, ezt feltétlenül nézze meg!!MIÉRT IDEÁLIS EZ A LAKÁS?- 4. emeleti, nettó 45,47 m²-es, 2 szobás, nyugati fekvésű modern ingatlan.- 19 m²-es, városi panorámával rendelkező terasz kapcsolódik hozzá, ahol a naplementében is gyönyörködhetünk.- Elosztása kényelmes: előtér, tágas amerikai konyhás nappali és étkező, hálószoba, fürdőszoba WC-vel.- A modern konyha teljes mértékben gépesített, mosogatógéppel is felszerelt.- A motoros redőnyök és napellenző minden helyiségben biztosítják a lakás optimális árnyékolását.- A levegő-levegő hőszivattyúval működő padló fűtés és mennyezeti hűtés költséghatékony, energiatakarékos megoldás.- A lakás rendkívül világos, az ablakok az utcára és a szemközti zöld udvarra néznek.- A modern, fiatalos és ízléses kialakítás mellett az ingatlan könnyen kiadható, hosszú távon is értékálló.AMIT A HÁZRÓL TUDNI KELL:- A társasház 2017-ben épült, 73 lakásos modern építészeti stílusú, és kiválóan karbantartott.- Geotermikus hőszivattyúval felszerelt, így a fűtés és hűtés energiatakarékos módon működik.- A lakópark rendezett, csendes környezetet biztosít a város szívében.- Az épületben két lift és biztonsági rendszerek garantálják a lakók kényelmét és biztonságát.KÖRNYÉK ÉS KÖZLEKEDÉS:- A kiváló lokációval rendelkező lakás Budapest egyik legdinamikusabban fejlődő városrészében, a IX. kerületben, a Viola utcában van. - A környék közlekedési szempontból verhetetlen: pár perc sétára elérhető az M3 és M4 metró, az 1, 2, 6, 51, 51A villamosok, illetve több buszjárat is.- 500 méteren belül minden megtalálható, ami a hétköznapokhoz szükséges lehet.- Boltok, kávézók, éttermek, gyógyszertár, orvosi rendelő, óvoda, iskola, edzőtermek, szórakozóhelyek és egyéb szolgáltatók várják a környék lakóit.- A Corvinus, a Semmelweis és a Pázmány Péter Katolikus Egyetem is könnyedén elérhető gyalogosan vagy tömegközlekedéssel, maximum 10 percen belül.- A környék kifejezetten vonzó a fiatalok és a kozmopolita életet kedvelők számára.! ! ! A lakáshoz opcionálisan vásárolható egy tágas teremgarázs beálló hely is a házban, melynek ára plusz 10 millió Ft ! ! ! FINANSZÍROZÁSBAN ONLINE ÜGYINTÉZÉSSEL IS SEGÍTÜNK!- Többszörösen díjnyertes irodánk hitelszakértői 20 éves szakmai tapasztalattal várják, előre egyeztetett időpontban akár normál munkaidőn kívül is.- Bank-független Hitel Centerünk díjmentesen versenyezteti minden bank és hitelintézet kínálatát, hogy önnek a legmegfelelőbb konstrukciót megtaláljuk.- Egyedi igényekre szabott, csak nálunk elérhető egyedi ajánlatokkal, fogyasztóbarát lakáshitelekkel, babaváró hitellel, teljes körű CSOK PLUSZ és OTTHON START ügyintézéssel állunk rendelkezésére.Kifejezetten keresett ingatlan, EGYEDI LEHETŐSÉG, ne maradjon le róla!Érdeklődés esetén VÁROM HÍVÁSÁT a hét minden napján!

További adatok

Telekterület: -
Kert mérete: -
Erkély mérete: 19 m2
Felszereltség: -
Parkolás: -
Kilátás: utcai
Egyéb extrák:  
-

Hirdető adatai

Hirdető neve: Otthon Centrum
Kapcsolattartó: Szabó Ferenc
Hirdető telefonszáma: +36 70 469 3506
Honlap: -