Ház
Origó
HázOrigoval pont a központban

Budapest, XXIII.kerület


 

Ingatlan adatai

Irányár: 44 900 000 Ft
Típus: lakás (tégla)
Kategória: eladó
Alapterület: 111 m2
Fűtés: gáz (konvektor)
Állapota: -
Szobák száma: 4
Építés éve: 1920
Szintek száma: -

Részletes leírás

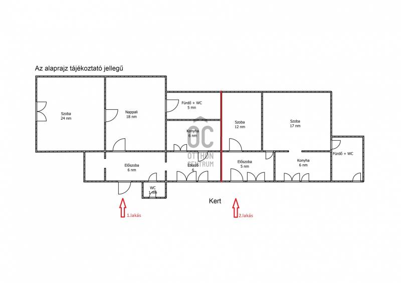
Kétgenerációs társasházi lakás eladó Soroksáron!Képzelje el, hogy egy olyan otthonra talál, amely tökéletesen illeszkedik családja igényeihez, és egy csendes, mégis jól megközelíthető környéken helyezkedik el. Budapest 23. kerületében, Soroksáron található, lakásunk 111 négyzetméteren kínálja Önnek és családjának a nyugalmat és a kényelmet. A gázkonvektoros fűtés biztosítja a megfelelő hőmérsékletet a hideg téli hónapokban, míg a nyári időszakban a kertkapcsolatos kialakítás lehetőséget ad arra, hogy a szabadban tölthesse a szabadidejét. A lakás 111 nm-es társasházi lakás, amelyhez egy 40 nm-es lekerített kertrész is tartozik. Az ingatlan kétgenerációssá lett alakítva, két külön bejárattal, amely akár egy mozdulattal újra egybe nyitható. AZ INGATLAN 3%-OS OTTHON START HITELRE NEM VÁSÁROLHATÓ MEG!Soroksár csendes, biztonságos városrész, ahol a mindennapi szükségletek könnyedén elérhetők. A közeli boltok, iskolák és óvodák garantálják, hogy minden családi tag megtalálja a számára szükséges szolgáltatásokat. A közlekedés is kiváló: a város tömegközlekedési eszközei, mint a buszok és vonatok, gyors hozzáférést biztosítanak Budapest belvárosához, így a munkahelyek és a szórakozási lehetőségek is könnyen elérhetők. 2 perc sétára HÉV megálló, amivel a Közvágóhíd-ra utazhatunk, vagy Ráckeve irányába, 10 perc sétára busz megálló, amivel Pesterzsébetre, és Kispestre juthatunk. Külön buszjárattal pedig a soroksári bevásárló udvarba mehetünk, ahol Auchan, Decathlon, Ikea stb. található.A lakás tehermentes, rövid időn belül birtokba vehető. Készpénzes ügyfelek jelentkezését várjuk.Szívesen állok rendelkezésére, hogy minden részletet átbeszéljünk, és Ön a legjobb döntést hozhassa meg családja jövője érdekében. Az ingatlan piaca dinamikus, és ez a remek lehetőség nem tart sokáig. Ne késlekedjen, lépjen velünk kapcsolatba még ma! Amennyiben kérdése lenne, vagy meg szeretné tekinteni az ingatlant, jelezze felém!Hívjon a hét bármely napján!

További adatok

Telekterület: -
Kert mérete: -
Erkély mérete: -
Felszereltség: -
Parkolás: -
Kilátás: udvari
Egyéb extrák:  
-

Hirdető adatai

Hirdető neve: Otthon Centrum
Kapcsolattartó: Török Brigitta
Hirdető telefonszáma: +36 70 388 5521
Honlap: -