Ház
Origó
HázOrigoval pont a központban

Veszprém megye, Balatonederics


 

Ingatlan adatai

Irányár: 120 000 000 Ft
Típus: nyaraló
Kategória: eladó
Alapterület: 122 m2
Fűtés: -
Állapota: -
Szobák száma: 4
Építés éve: 1990
Szintek száma: -

Részletes leírás

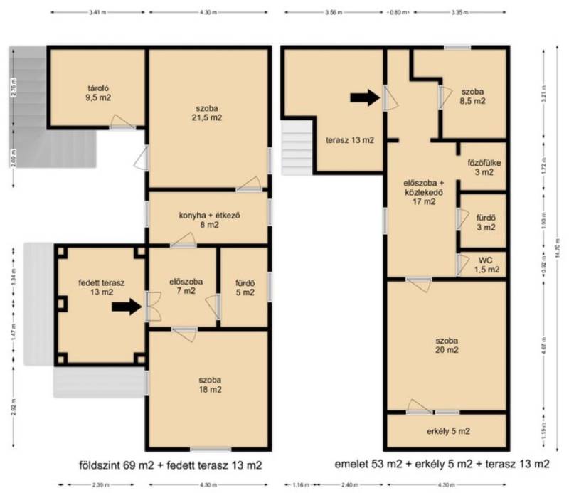
Balatonederics a Balaton északi partján, a Keszthelyi-fennsík keleti szélén fekszik, a 71-es főút és a Balatont Sopronnal összekötő 84-es főút találkozásánál.A településen több látnivaló található: négy fokozottan védett barlang (Csodabogyós-barlang, a Döme-barlang, a Jakucs László-barlang és a Kessler Hubert-barlang), Afrika Múzeum és Állatkert, Fekete-kastély, Keresztelő Szent János-templom. Különösen büszke a település a balatoni strandfürdőjére, a Tájházára, és a Pele-Apó tanösvényére.Ezen a településen kínálom megvételre az alábbi ingatlant:Jellemzői:- A zártkerti besorolású telek 1439 m2-es, osztatlan közös tulajdonban van a szomszédos telekkel.- Nincs kivonva művelési ág alól, így kifüggesztése szükséges.- Murvás úton közelíthető meg.- A kétszintes ház fel van tüntetve a térképen.- Beton alapra, tégla falazattal és beton födémmel épült.- A tető cseréppel fedett.- Víz és villany került bevezetésre, csatorna, gáz nem elérhető.- A szennyvíz üllepítős emésztőgödörbe folyik.- A ház 122 m2-es, két szintes.- Az alsó szint 69 m2-es, amihez egy fedett 13 m2-es terasz tartozik.- Itt 2 szoba, előszoba, fürdő + WC, konyha + étkező tartozik.- A külső lépcsőn elérhető felső szint 53 m2-es, ahol szintén kettő szoba, előszoba, WC, fürdő, főzőfülke, erkély és terasz került kialakításra.- Nyílászárói fa szerkezetűek.- Jelenleg fűtés nincs az épületben.- A kettő darab 13 m2-es terasz ideális helyszín a reggeli kávézáshoz vagy a nyári estéken való pihenéshez, míg az 5 négyzetméteres erkély a panoráma élvezetére ad lehetőséget, amely a környék szépségét tárja elénk.- Kivételes kilátás van a Balatonra, Badacsonyra, szigligeti várra.- A ház állapota jó, és bár jelenleg fűtés nélkül áll, a lehetőségek széles tárháza áll rendelkezésre a jövőbeli fejlesztésekhez. - A környék csendes, biztonságos és barátságos, ideális választás mindazok számára, akik a nyugalmat keresik, ugyanakkor a Balaton közelségét is élvezni szeretnék. - Ez az ingatlan nem csupán egy ház, hanem egy lehetőség arra, hogy egy szép környezetben élvezze a mindennapokat, vagy hogy egy értékálló befektetést valósítson meg. Ha bármilyen kérdése van, vagy szeretné megtekinteni ezt a különleges ingatlant, bizalommal kereshet minket. Az Ön elégedettsége és bizalma a legfontosabb számunkra, és örömmel segítünk megtalálni az Ön számára legmegfelelőbb megoldást.

További adatok

Telekterület: 1 439 m2
Kert mérete: 1 439 m2
Erkély mérete: 32 m2
Felszereltség: -
Parkolás: -
Kilátás: -
Egyéb extrák:  
-

Hirdető adatai

Hirdető neve: Otthon Centrum
Kapcsolattartó: Vucskó Krisztina
Hirdető telefonszáma: +36 70 716 8171
Honlap: -