Ház
Origó
HázOrigoval pont a központban

Budapest, XIX.kerület


 

Ingatlan adatai

Irányár: 120 000 000 Ft
Típus: ház
Kategória: eladó
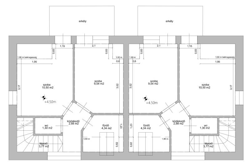
Alapterület: 80 m2
Fűtés: -
Állapota: új
Szobák száma: 3
Építés éve: 2025
Szintek száma: -

Részletes leírás

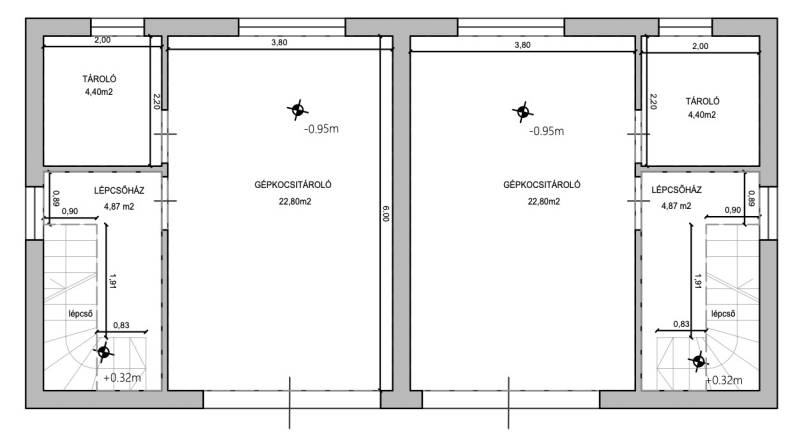
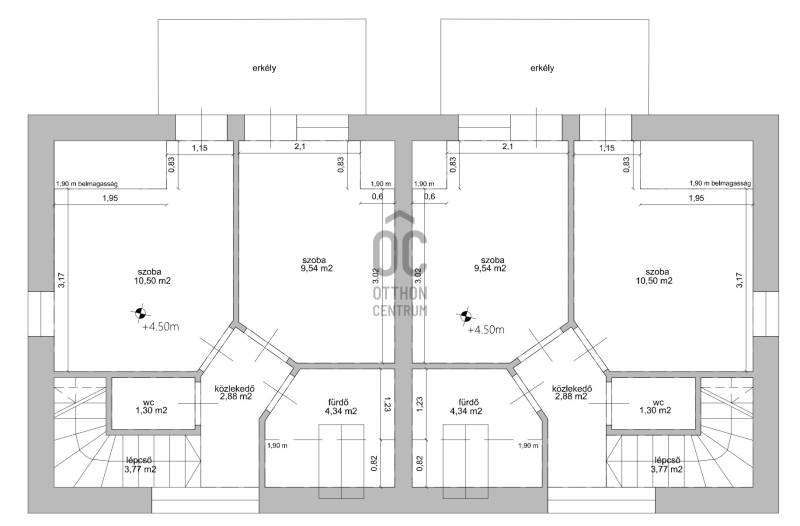
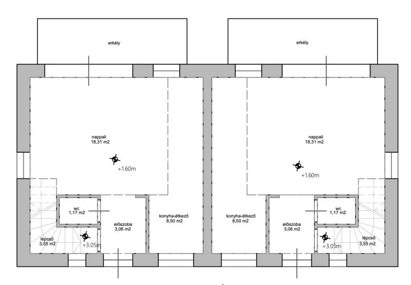
Megvételre kínálunk Kispest kertvárosában újépítésű belső kétszintes nettó 100 m2 -es lakást.Az ingatlan magas minőségű alapanyagok felhasználásával, jó műszaki tartalommal épült.Elosztása: amerikai konyhás nappali plusz két hálószoba, fürdőszoba WC-vel, külön WC, előszoba.Műszaki jellemzők:-Hőszivattyús hűtés-fűtés- minden szoba klimatizált,- padlófűtés- elektromos alumínium redőnyök- szúnyogháló- videós kaputelefonVárható átadás 2025 IV negyedév. Használatbavételi engedélyt megkapta a lakás!Amennyiben olyan új ingatlant szeretne, ahol kis lakóközösség várja Önt, biztosíthatom, hogy az egyik legjobb választás a kerületben.A közelében minden megtalálható, ami fontos a hétköznapokban.A környék remek infrastruktúrával rendelkezik.CSOK, Babaváró, Lakásfelújítás, Támogatott hitelek?Irodánk minden állami támogatás és lakáshitel igény kapcsán DÍJMENTES és SZAKÉRTŐ segítséget nyújt!Igény szerint ügyvédi hátteret is biztosítunk.Bővebb információért keressen, várom!

További adatok

Telekterület: 100 m2
Kert mérete: 100 m2
Erkély mérete: 13 m2
Felszereltség: -
Parkolás: -
Kilátás: udvari
Egyéb extrák:  
-

Hirdető adatai

Hirdető neve: Otthon Centrum
Kapcsolattartó: Csuha Attila
Hirdető telefonszáma: +36 70 465 7026
Honlap: -