Ház
Origó
HázOrigoval pont a központban

Budapest, I.kerület


 

Ingatlan adatai

Irányár: 199 000 000 Ft
Típus: lakás (tégla)
Kategória: eladó
Alapterület: 92 m2
Fűtés: -
Állapota: -
Szobák száma: 3
Építés éve: 1910
Szintek száma: -

Részletes leírás

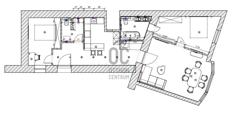
Egy igazán különleges lehetőség prémium lakást keresők számára! A Batthyány utcában Ostrom utca felőli végén a Bécsi kapuhoz közel található, 92 négyzetméteres, frissen felújított lakás modern dizájnnal és egyedi tervezéssel várja új tulajdonosát. Az ingatlan állapota kiváló, a prémium kivitelezés és a beépített bútorok minden igényt kielégítenek.A lakás nappalival két hálószobával, két fürdőszobával és külön konyhával rendelkezik, amely lehetővé teszi a kényelmes életvitelt akár családok számára is. A lakás első osztályú minőségét a legmodernebb levegő-víz hőszivattyú rendszer garantálja, így a lakás tulajdonosa a modern technológia előnyeit élvezheti. A padlófűtés és a mennyezeti hűtésrendszer került kialakításra, amely lehetővé teszi ,hogy minden helységben külön szabályozható a hőmérséklet. A környék ellátottsága kiváló, hiszen a közeli üzletek, éttermek és szolgáltatások mindössze pár perc sétára találhatók. A lakásban utcára néző nappali és hálószoba továbbá egy udvarra néző hálószoba került kialakításra. Mindkét hálószobához saját fürdőszoba tartozik. A tágas közlekedőben kerül beépítésre a minőségi, teljesen gépesített konyhabútor. Az ingatlan teljesen berendezve, új bútorzattal kerül értékesítésre amelynek ára további 15.000.000Ft. Az I.kerület Budapest egyik felkapottabb területe, amely ideális választás a nyugodt, de mégis központi elhelyezkedésre vágyók számára. A Széll Kálmán tértől 2 perc sétára elhelyezkedő lakás kitűnő közlekedést biztosít, így a város bármely pontja könnyen elérhető tömegközlekedéssel is. A környék biztonságos és csendes, így ideális otthont nyújt mindazoknak, akik a városi élet előnyeit szeretnék élvezni. Ha kérdései lennének az ingatlannal vagy a vásárlási folyamattal kapcsolatban, ne habozzon, bizalommal keressen minket! Az Ön elégedettsége a legfontosabb számunkra, és segítünk, hogy a legjobb döntést hozhassa meg. Ne hagyja ki ezt a lehetőséget, hiszen egy ilyen ingatlan ritkán kerül a piacra!Ez az ingatlan a \"Felező csomag\" megbízási portfólióhoz tartozik. Részletek az Otthon Centrum weboldalán.

További adatok

Telekterület: -
Kert mérete: -
Erkély mérete: -
Felszereltség: -
Parkolás: -
Kilátás: utcai
Egyéb extrák:  
-

Hirdető adatai

Hirdető neve: Otthon Centrum
Kapcsolattartó: Dienes Krisztián
Hirdető telefonszáma: +36 70 461 9011
Honlap: -