Ház
Origó
HázOrigoval pont a központban

Tolna megye, Györköny


 

Ingatlan adatai

Irányár: 22 000 000 Ft
Típus: ház
Kategória: eladó
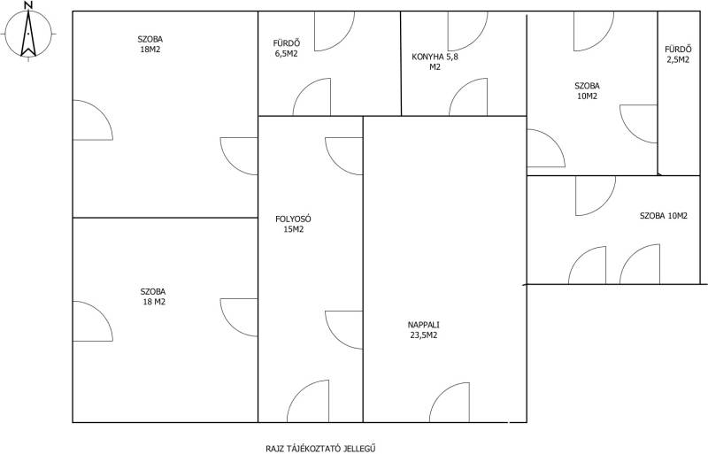
Alapterület: 107 m2
Fűtés: gáz (cirko)
Állapota: felújítást igényel
Szobák száma: 4
Építés éve: 1972
Szintek száma: -

Részletes leírás

GYÖRKÖNYBEN ELADÓ CSALÁDI HÁZ!Szeretnél  kedves barátságos emberek között lakin?Akkor itt a helyed!Eladásra kínálok egy csendes sváb faluban felújítandó családi házat.                                    A házban 4 szoba, konyha nagy nappali 2 fürdő-WC található. A ház hátsó falazata vert fal a többi téglából lett újjá építve 1972- ben. 1 szobához külön bejárat is van amelyhez tartozik a zuhanyzó WC. Utcai szobákba  műanyag ablakok vannak.Fűtést gáz kazán plusz vegyes tüzelésű kazán adja és még egy fa tüzelésű kályha is rendelkezésre áll!Faluban van bolt, óvoda ,iskola, Orvos.      Sok rendezvény van egy csodálatos pince falú részen ahol a falu lakói együtt szórakoznak.    Csokk igénybe vehető.Ha fel keltettem az érdeklődését keressenek bizalommal. :)

További adatok

Telekterület: 1 087 m2
Kert mérete: 1 087 m2
Erkély mérete: -
Felszereltség: -
Parkolás: -
Kilátás: -
Egyéb extrák:  
-

Hirdető adatai

Hirdető neve: Otthon Centrum
Kapcsolattartó: Molnár Ida
Hirdető telefonszáma: +36 70 469 3596
Honlap: -