Ház
Origó
HázOrigoval pont a központban

Budapest, VII.kerület


 

Ingatlan adatai

Irányár: 399 000 000 Ft
Típus: kereskedelmi/ipari ingatlan
Kategória: eladó
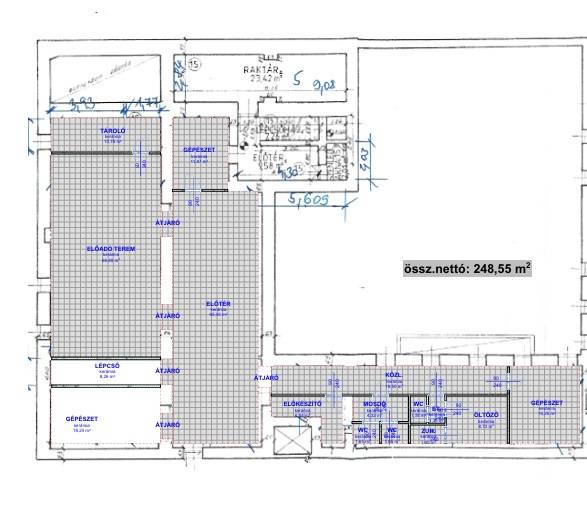
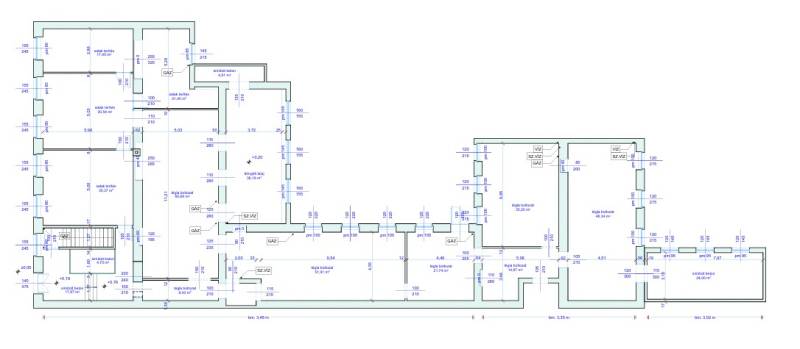
Alapterület: 695 m2
Fűtés: -
Állapota: -
Szobák száma: -
Építés éve: -
Szintek száma: -

Részletes leírás

Izabella 50 – Klasszikus érték, modern célokkal Belső-Erzsébetváros lüktető szívében, mindössze 50 méterre az Andrássy úttól, egy neoklasszicista társasház alsó két szintjén kínálunk több mint 695 m² hasznosítható, jól tagolt teret. Múltjában magánklinika, jövőjében új korszak – a lehetőségek szinte korlátlanok.Műszaki paraméterek, amik meggyőznek:- Jól kialakított belső terek- A klasszikus stílus megmaradt- Önállóan működtethető földszint és szuterén – külön bejárattal- Kiépített vízpontok, rendelőszabvány szerinti szellőztetőrendszer- Engedéllyel rendelkező, korábban működő egészségügyi szolgáltatóként nyilvántartott egység- Kiváló állapotban lévő mosdók és fürdőszobák- Hőszivattyús kazán, teljes összközművesítés- Számítógépes és szerver központ előkészítve – irodai és pénzügyi tevékenységre is tökéletes- Kijárat a történelmi hangulatú, pesti stílusú belső udvarra.Hasznosítási lehetőségek tárháza:- Céges központ vagy startup hub- Bankfiók, pénzügyi szolgáltató- Szépség- és egészségközpont, rendelő- Stílusos vendéglátóegység vagy galéria- Ügyvédi irodáknakA környezet presztízse: A VI. kerület egyik legértékesebb övezete – kiváló tömegközlekedéssel, kulturális közelséggel, és a belvárosi élet minden előnyével. Az Andrássy út közelsége nemcsak eleganciát, de stratégiai elérhetőséget is biztosít.Izabella 50 – nem csupán ingatlan, hanem városi lehetőség. Egy tér, amely készen áll arra, hogy víziód színpadává váljon.

További adatok

Telekterület: -
Kert mérete: -
Erkély mérete: -
Felszereltség: -
Parkolás: -
Kilátás: -
Egyéb extrák:  
-

Hirdető adatai

Hirdető neve: Otthon Centrum
Kapcsolattartó: Dombi András
Hirdető telefonszáma: +36 70 412 3076
Honlap: -