Ház
Origó
HázOrigoval pont a központban

Szabolcs-Szatmár-Bereg megye, Nagyvarsány


 

Ingatlan adatai

Irányár: 5 500 000 Ft
Típus: ház
Kategória: eladó
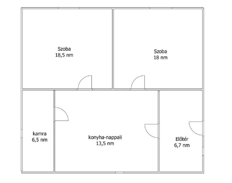
Alapterület: 63 m2
Fűtés: -
Állapota: felújítást igényel
Szobák száma: 2
Építés éve: 1965
Szintek száma: -

Részletes leírás

Nagyvarsányban kínálok eladásra egy nettó 63 nm alapterületű családi házat. Az ingatlan vályog falazattal rendelkezik, felújítandó állapotú. Az elmúlt évben nyílászáróit hőszigetelt műanyagra cserélték, Közművek közül villany bevezetve, gáz telken belül , víz , szennyvíz csatorna az utcán található. Az ingatlanban fürdőszoba kialakítása megoldható, mely az új tulajdonos saját ízlése szerint alakíthat, Udvarán tárolók, nyári konyha, pince és garázs is elhelyezésre került, mindez 4039 nm-es telken. Telek nagysága révén , kertje kiválóan alkalmas gazdálkodásra. Könnyen megközelíthető helyen, átmenő forgalomtól mentes utcában található. Amennyiben bővebb információra lenne szüksége, keressen bizalommal. Vevő ügyfeleink részére minden szolgáltatásunk díjmentes!

További adatok

Telekterület: 4 039 m2
Kert mérete: 4 039 m2
Erkély mérete: -
Felszereltség: -
Parkolás: -
Kilátás: -
Egyéb extrák:  
-

Hirdető adatai

Hirdető neve: Otthon Centrum
Kapcsolattartó: Pocsai Katalin
Hirdető telefonszáma: +36 70 469 3481
Honlap: -