Ház
Origó
HázOrigoval pont a központban

Pest megye, Nagytarcsa


 

Ingatlan adatai

Irányár: 319 900 000 Ft
Típus: iroda
Kategória: eladó
Alapterület: 457 m2
Fűtés: -
Állapota: -
Szobák száma: -
Építés éve: 1998
Szintek száma: -

Részletes leírás

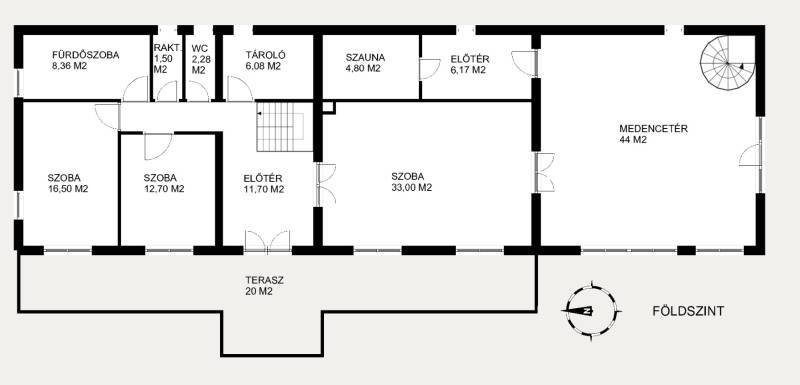
Az ingatlan sok célra hasznosítható a kiváló lokációjának köszönhetően:- irodáknak,- bemutató teremnek,- szolgáltató központnak: oktatási intézmény, egészségügyi intézmény, sport- vagy szépségfarm, fejlesztő központ, stb.Főbb tulajdonságok:- 2974 m2-es belterületi telek,- 457 m2-es ingatlan terület (1 főépület és 2 melléképület),- 1998-ban épült 36 cm vastag téglából, tavalyi évben 10 cm grafitos hőszigetelést kapott,- ablakai thermo fa nyílászárók (kivéve a medence térben, ott műanyag),- teteje zsindelyezett, részben idén felújított,- összközműves, pluszban fúrt kúttal rendelkezik,- fűtésre ki van építve a gáz hálózat, de jelenleg vegyestüzelésű kazánnal használják, a földszinten padlófűtéssel (szükséges helyeken radiátoros kiegészítéssel), emeleten radiátoros,- fűthető továbbá az inverteres hűtő fűtő-klímákkal, amikből jelenleg 8 db. van,- földszinten található egy fatüzelésű kandalló is,- a medence hőszivattyús rendszerrel fűtött,- 3*32Amper áramellátása van az épületnek, H tarifa is van,- 12,6kW új napelemek (30 panel) + 10kW/h-ás akupakk,- előkészített riasztó rendszer,- kiépített külső kamera rendszerEgyéb tulajdonságok:- a főépületben 13 szoba - nagyobb helyiség van jelenleg a 3 szinten,- a fenti helyiségekből az egyik egy előadó - konferenciaterem, a másik pedig a beltéri uszoda helyiség,- 8 fürdőszoba/mosdóhelyiség, az emeleti irodák saját mosdóval rendelkeznek,- a fűtött medence 4,2*8,7 méteres, fokozatosan mélyül (1 métertől 1,6 méterig),- 6 személyes finn szauna,- jacuzzi,- a pinceszinten található garázsban 1 autó tud parkolni, a kertben 3 autó részére van megépítve fedett beállóAz M0 felhajtója 2,5 km-en belül található , a buszmegálló 300 méteren belül.Igény esetén bankfüggetlen és DÍJMENTES hiteltanácsadó közreműködését biztosítjuk, aki a teljes folyamaton végigkíséri Önt.Kérdés esetén, vagy amennyiben meg szeretné tekinteni, kérem keressen az elérhetőségeimen.A hét minden napján elérhető vagyok 8:00-19:00 között, elfoglaltság esetén visszahívom.Amennyiben még ingatlanát el kell adnia, azügyben is állok rendelkezésére.Referencia szám: UZ018740

További adatok

Telekterület: -
Kert mérete: -
Erkély mérete: -
Felszereltség: -
Parkolás: -
Kilátás: -
Egyéb extrák:  
-

Hirdető adatai

Hirdető neve: Otthon Centrum
Kapcsolattartó: Nagy Mária
Hirdető telefonszáma: +36 70 716 9111
Honlap: -