Ház
Origó
HázOrigoval pont a központban

Baranya megye, Máza


 

Ingatlan adatai

Irányár: 25 900 000 Ft
Típus: ház
Kategória: eladó
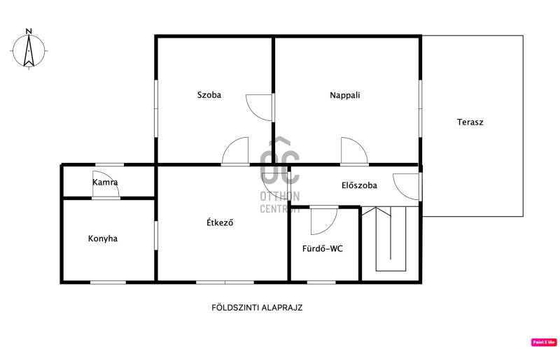
Alapterület: 139 m2
Fűtés: gáz (cirko)
Állapota: -
Szobák száma: 5
Építés éve: 1964
Szintek száma: -

Részletes leírás

Rendkívül jó alaprajzi elrendezésű ikerház várja új tulajdonosát 5 km-re Óbányától, Mázán.Tulajdonosa szerette a jó szomszédok, a gyönyörű panoráma, a tágas szobák, és a nagy terasz miatt.A tetőtér beépített, amiben 3 szoba és egy fürdőszoba-WC helyiségek találhatóak.Ha felkeltette érdeklődését, hívjon bátran!Regisztrációs szám: H503410Teljes körű pénzügyi megoldások ügyintézése díjmentesen.Minden élethelyzetre végzünk pénzügyi elemzést - ha vásárolni szeretne, segítünk, hogy ezt a legjobb feltételek mellett tegye; ha eladni szeretné ingatlanát, nézzük meg, hátha érdemes meglévő hitelét átváltani.Keressen bizalommal, szakértők vagyunk!

További adatok

Telekterület: 330 m2
Kert mérete: 330 m2
Erkély mérete: 16 m2
Felszereltség: -
Parkolás: -
Kilátás: -
Egyéb extrák:  
-

Hirdető adatai

Hirdető neve: Otthon Centrum
Kapcsolattartó: Bihary Szabolcs
Hirdető telefonszáma: +36 70 716 9966
Honlap: -