Ház
Origó
HázOrigoval pont a központban

Budapest, VI.kerület


 

Ingatlan adatai

Irányár: 119 900 000 Ft
Típus: lakás (tégla)
Kategória: eladó
Alapterület: 55 m2
Fűtés: gáz (cirko)
Állapota: -
Szobák száma: 2
Építés éve: 1950
Szintek száma: -

Részletes leírás

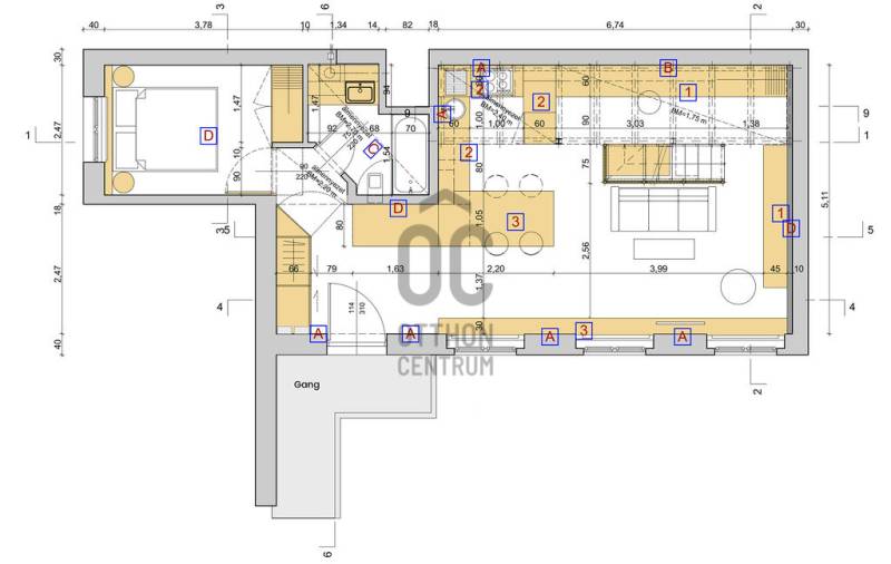
Eladó egy belsőépítész által tervezett, 3. emleti, 2 szoba + galériás teljesen felújított lakás egy felújított homlokzatú házban a 6. kerület Kodály körönd és Oktogon közti részén. A lakásban mindent kicseréltek, a fürdőt kibővítették, az ablakokat teljes körűen felújították.A tervező hihetetlen jó térelosztás alkalmazott aminek köszönhetően kialakítható lett egy dolgozó és egy 10 m2-es galériá vendég hálóval, 2 munkaállomással.A lakás alkalmas lehet vendégeket gyakran váró egyedül állónak, fiatal pároknak, de még akár egy fiatalos 3 fős családnak is.További részletekért kérem hívjon, akár hétvégén is.állom ottthon, modern lakás, felújított lakás, álom lakás a 6. kerületben

További adatok

Telekterület: -
Kert mérete: -
Erkély mérete: -
Felszereltség: -
Parkolás: -
Kilátás: udvari
Egyéb extrák:  
-

Hirdető adatai

Hirdető neve: Otthon Centrum
Kapcsolattartó: Molnár Tamás
Hirdető telefonszáma: +36 70 716 9401
Honlap: -