Ház
Origó
HázOrigoval pont a központban

Pest megye, Kerepes


 

Ingatlan adatai

Irányár: 145 000 000 Ft
Típus: ház
Kategória: eladó
Alapterület: 220 m2
Fűtés: gáz (cirko)
Állapota: -
Szobák száma: 6
Építés éve: 1997
Szintek száma: -

Részletes leírás

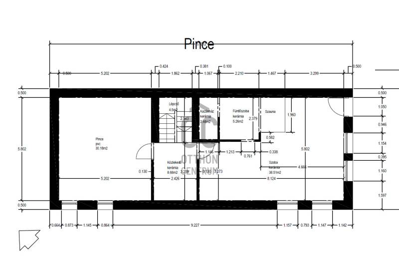
Erdő szélén, patak partján – 6 szobás otthon Kerepes szívében. Tágas terek, természet és harmónia.SZABADTÉRI KONYHA - SZAUNA - RIASZTÓRENDSZER - KAMERARENDSZER - FÚRT KÚT - ÖNTÖZŐRENDSZER - DUPLA GARÁZS - OKOSVEZÉRLÉSFőbb tulajdonságok:- 1243 m2 telek terület,- 1997-ben épült 3 szintes ház, 10 cm dryvit hőszigeteléssel,- nettó 206 m2 lakótér, bruttó 311 m2 alapterület,- Dél-Keleti tájolás,- beton födém, cseréptető fedés,- fa thermo nyílászárók, a földszinten pár éve cserélve,-a földszinti ablakokon motoros redőnyökkel és szúnyoghálóval,- gázcirkó fűtés okosvezérléssel aplikáción keresztül, szobánként vezérelhető,- látványkandalló,- klimatizált alul, felül, - kiépített riasztó- és kamerarendszer,- motoros kapu az utcafronton és a garázsoknál is,- automata öntözőrendszer a kertben, fúrt kútrólIngatlan helyiségei a földszinten:- 2 állásos garázs 28,91 m2,- előszoba 6,87 m2,- nappali 29,05 m2,- fedett terasz 32,79 m2,- étkező 10,14 m2,- konyha 6,29 m2,- kamra 2,19 m2,- wc-kézmosó 1,96 m2,- közlekedő 0,76 m2,- lépcsőház 4,00 m2Ingatlan helyiségei az emeleten:- szülői háló 18,94 (14,91) m2,- gardrób szoba 8,38 (5,63) m2,- fürdőszoba 9,06 (7,60) m2,- szoba 8,53 (7,93) m2,- erkély 7,87 m2,- szoba 13,4 (9,69) m2,- szoba 12,96 (9,25) m2,- háztartási helyiség 6,93 (4,09) m2,- közlekedő 8,15 m2,- lépcsőház 4,00 m2Ingatlan helyiségei a pinceszinten:- tároló/műhely 30,218 m2,- közlekedő 8,68 m2,- lépcsőház 4,50 m2,- kazánház 2,48 m2.- szauna/fürdőszoba 5,26 m2,- hobbiszoba 38,51 m2 - a kertből közvetlenül megközelíthetőA kert három jól elkülönült részre van osztva, az utcafronti szakasz 6-8 autó részére is parkolási lehetőséget nyújt, így vállalkozás részére is alkalmas vagy nagyobb vendégsereg fogadására.A kert második része, ahova a nappali terasza is néz, parkosított, ideális akár úszómedence elhelyezésére.A kert harmadik végében a Szilas patak felé haladva lett kialakítva egy kis birodalom, ami tavasztől őszig a kinti főzésre-sütésre, vendégfogadásra kiváló , akár rendezvények tartására is alkalmas.Ez a terület is kamerával megfigyelt. Vezetékes víz van, illetve bográcsozó, kemence, sparhelt, grillasztal, szaletli, tároló lett építve. Még kihangosítás és táncparkett is van.Perceken belül minden elérhető, amire szükség lehet.A H8-as HÉV megállója pár perc sétára van, közelben van a távolsági busz megállója, ami Budapest-Gödöllő között közlekedik. Az M0 és M31 szintén gyorsan elérhető.Üzletek, orvosi rendelő, iskola a közelben találhatóak.Jó szívvel ajánlom családoknak, összeköltözőknek, de vállalkozás céljára is kiváló.Igény esetén bankfüggetlen és DÍJMENTES hiteltanácsadó közreműködését biztosítjuk, aki a teljes folyamaton végigkíséri Önt.Az adásvétel biztonságos és gördülékeny bonyolítása érdekében tapasztalt ingatlan szakjogászaink szolgáltatását is ajánljuk.Kérdés esetén, vagy amennyiben meg szeretné tekinteni, kérem keressen az elérhetőségeimen.A hét minden napján elérhető vagyok 8:00-19:00 között, elfoglaltság esetén visszahívom.Amennyiben még ingatlanát el kell adnia, azügyben is állok rendelkezésére.Referencia szám: H504055

További adatok

Telekterület: 1 243 m2
Kert mérete: 1 243 m2
Erkély mérete: -
Felszereltség: -
Parkolás: -
Kilátás: -
Egyéb extrák:  
-

Hirdető adatai

Hirdető neve: Otthon Centrum
Kapcsolattartó: Nagy Mária
Hirdető telefonszáma: +36 70 716 9111
Honlap: -