Ház
Origó
HázOrigoval pont a központban

Veszprém megye, Balatonszepezd


 

Ingatlan adatai

Irányár: 199 000 000 Ft
Típus: nyaraló
Kategória: eladó
Alapterület: 125 m2
Fűtés: gáz (cirko)
Állapota: -
Szobák száma: 3
Építés éve: 1989
Szintek száma: -

Részletes leírás

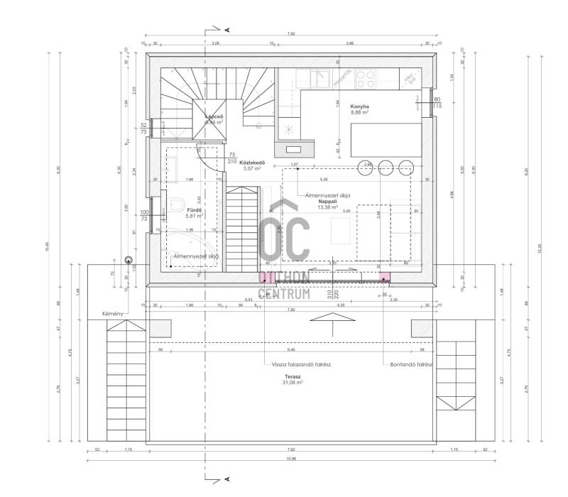
Balatonszepezd központi részén 949 négyzetméteres telekkel rendelkező lakóingatlan eladó, melyet 2021-ben teljes körűen felújítottak. Az ingatlan egy napfényes szuterén szintből, egy emeletből és egy tetőtérből áll. A külön bejáratú, kertkapcsolatos szuterénben mosókonyhával összekötött fürdőszoba+wc, valamint egy nappali található. A földszinten fürdőszoba+wc, egy amerikai konyha és nappali, valamint egy gardrób helyiség is található. Ehhez a részhez kapcsolódik egy balatoni panorámával rendelkező terasz. A felső emelet egy dolgozósarokból, egy nappali és hálószoba részből áll, amelyhez külön gardrób és fürdőszoba+wc csatlakozik. Ez a szint is Balatonra néző panorámával nyújt csodaszép látványt az év minden szakában. A ház fűtését Vaillant kombi gázkazán biztosítja. A földszinten egy működőképes kandalló is található. Emellett minden szinten beszerelésre került 1-1 hűtésre-fűtésre alkalmas légkondícionáló berendezés. A kertben egy fedett kocsibeálló, valamint több autó parkolására alkalmas viacolor térkővel kirakott kocsibehajtó található. A ház mellett egy teljesen felszerelt, gépesített nyári konyha, egy kerti zuhanyzó, bográcsozó-grillező és egy tároló kamra helyezkedik el. A télen-nyáron zöldellő kertben fúrt kút és locsolórendszer van kiépítve. A ház bejáratain és ablakain szúnyoghálók, elektromos redőnyök, sötétítők, a terasz és tetőtér ablakai felett napellenzők vannak. Az épület riasztórendszerrel felszerelt. A kert több mint 100 féle növénnyel beültetett, a mediterrán növények, a ritka fák, a veteményes- és a fűszerkert gondosan ápolt és kertészekkel karbantartott. Méretek: Telek: 949 m² Terasz: 31,08 m² Szuterén: 24,43 m² Földszint: 31,64 m² Emelet: 43,9 m² Nyárikonyha: 21 m² Fedett kocsibeálló: 24 m² Amennyiben kérdése merülne fel az ingatlannal kapcsolatban, illetve szeretné azt megtekinteni, kérem keressen megadott elérhetőségeim egyikén!

További adatok

Telekterület: 979 m2
Kert mérete: 979 m2
Erkély mérete: 31 m2
Felszereltség: -
Parkolás: -
Kilátás: -
Egyéb extrák:  
-

Hirdető adatai

Hirdető neve: Otthon Centrum
Kapcsolattartó: Tápi-Bódis Kitti
Hirdető telefonszáma: +36 70 412 5256
Honlap: -