Ház
Origó
HázOrigoval pont a központban

Hajdú-Bihar megye, Debrecen


 

Ingatlan adatai

Irányár: 99 350 000 Ft
Típus: ház
Kategória: eladó
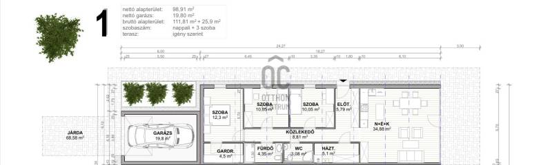
Alapterület: 99 m2
Fűtés: -
Állapota: új
Szobák száma: 4
Építés éve: 2025
Szintek száma: -

Részletes leírás

Debrecen Felső-Józsa városrészében egy új építésű, energiatakarékos családi ikerház, 977 m2-es telekkel eladó ! Ha szeretne biztos lenni abban, hogy otthona minimális rezsiköltséggel hosszú távon fenntartható, akkor ez a hirdetés önnek szól! Az ingatlan nettó 99 m2 lakótérrel + 20 m2-es garázzsal rendelkezik . 3 szoba+ amerikai konyhás nappali+ étkező, dupla fürdőszoba, tágas terek jellemzik, kiváló választás akár nagycsaládosok részére is!Az egyedi tervezésű, nagy üvegfelülethez nagy belmagasság párosul a nappali-konyha -étkező részen. Fűtése hőszivattyúval történik, amely a legmodernebb technológiát képviseli, így nemcsak környezetbarát, hanem gazdaságos megoldást is nyújt. A hűtésről klímaberendezés gondoskodik, amely a nyári hónapokban kellemes hőmérsékletet biztosít. A 3 fázis bevezetésre kerül, így kellő napelemekkel akár teljesen 0-ás rezsiköltséggel is fenntartható! Az ikerházak önálló falazattal , hangszigeteléssel ellátva. Közlekedési lehetőségek kiválóak, az autópálya pillanatok alatt elérhető. Debrecen központja mindössze néhány percnyi autóútra található, tömegközlekedés is a közelben. A városrész jól ellátott, élelmiszerüzletek, bevásárló központok, iskolák, óvodák és minden más üzlet a központban.Csok+-ra alkalmas, hitelezhető! Költözzön szeretteivel már idén ősszel!Ez az ingatlan nem csupán egy új otthon, hanem egy életstílus, amely a modern kényelmet és a természet közelségét ötvözi minimális fenntartási költséggel!További felvilágosításért várom megkeresését!Debrecen, Józsa, eladó, ház, ikerház, 4 szoba, új építésű, A+, energiatakarékos, földszintes

További adatok

Telekterület: 977 m2
Kert mérete: 977 m2
Erkély mérete: -
Felszereltség: -
Parkolás: -
Kilátás: -
Egyéb extrák:  
-

Hirdető adatai

Hirdető neve: Otthon Centrum
Kapcsolattartó: Boruzsné Szabó Klára
Hirdető telefonszáma: +36 70 716 9706
Honlap: -