Ház
Origó
HázOrigoval pont a központban

Pest megye, Tahitótfalu


 

Ingatlan adatai

Irányár: 98 000 000 Ft
Típus: ház
Kategória: eladó
Alapterület: 188 m2
Fűtés: gáz (cirko)
Állapota: -
Szobák száma: 4
Építés éve: 1996
Szintek száma: -

Részletes leírás

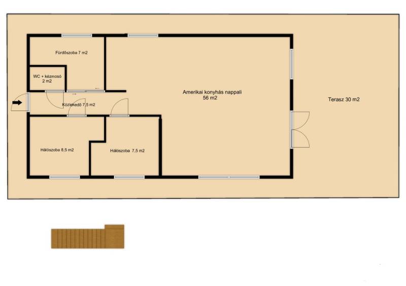
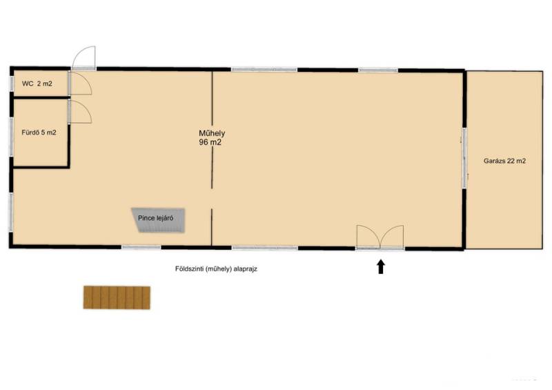
Az ingatlan újra elérhető, egy korábbi megállapodás után – a vevő oldalán bekövetkezett, előre nem látható családi ok miatt – ismét a piacra került. A ház adottságai azonban mit sem változtak: ritka térstruktúra, sokoldalú hasznosíthatóság és komoly jövőbeni potenciál jellemzi.A Szentendrei-sziget szívében, Tahitótfalun, bruttó 230 nm-es, egyedi kialakítású ingatlan 965 nm-es parkosított telken – alkotóknak, vállalkozóknak, többgenerációs otthonnak vagy befektetésnek is kivételes lehetőség!Két szint – két önálló funkció, számtalan lehetőség:- Földszint:Jelenleg világos, tágas műhely / műterem (kb. 108 nm), saját fürdőszobával és WC-vel. Ideális alkotói tevékenységre, stúdiónak, galériának, bemutatótérnek vagy workshopok helyszínéül is.A közel 270 cm-es belmagasság, a természetes fény és a jól alakítható tér bármilyen kreatív vagy üzleti elképzelésnek kiváló alapot ad.Innen nyílik egy 23 nm-es pince, valamint a ház teljes hosszában végigfutó fedett terasz.- Emelet:Egy 52,5 nm-es amerikai konyhás nappali, két hálószoba, fürdőszoba, valamint egy kb. 30 nm-es, panorámás, fedett terasz, amely körbeöleli az egész szintet, lenyűgöző kilátással a környező mezőkre.A nappali 420 cm-es belmagassága valódi térélményt nyújt: nyitott fa mennyezet, természetes fény, minőségi famunkák – egyszerre otthonos és reprezentatív.Műszaki tartalom, ami már adott – a végső forma rád vár:Az ingatlan folyamatosan karbantartott, gázcirkó fűtésű, az emeleten padlófűtés és klíma is rendelkezésre áll.Modernizált elektromos hálózat, vízszűrő rendszer, felújított fürdőszoba – a korszerű alapok megvannak, a végső arculat az új tulajdonos elképzelése szerint alakítható.- Kert, melléképületek, tárolás:- A kertben található:22 nm-es garázs,fedett és fedetlen autóbeállók,70 nm-es tároló,valamint egy 27 + 25 nm-es melléképület, amely tovább növeli a hasznosítási lehetőségeket.- Otthon, vállalkozás, befektetés – egyre nagyobb üzleti potenciál:Az ingatlan több generáció számára, irodának, műhelynek, galériának, vagy akár két külön lakásként is hasznosítható.Belsőépítészeti tervek már készültek, igény esetén szívesen megosztjuk.A környék rohamos gasztronómiai fejlődésen megy keresztül: nemrég nyílt meg a Szentendrei-sziget új, szakmai díjakra és elismerésekre is hivatott vendéglátóhelye, a PAPI Restaurant & Farm, amely tovább növeli a térség vonzerejét.Ez a tendencia az ingatlanban rejlő üzleti és befektetési potenciált is folyamatosan erősíti.- Elhelyezkedés:Tahitótfalu központja pár percre elérhető (Coop, zöldséges, gyógyszertár, iskola, posta, buszmegálló), az infrastruktúra kiváló, miközben a zöld környezet és a nyugalom valódi minőségi életet biztosít.Irányár: 98 M FtVárom a hívását! Amennyiben nem venném fel, ígérem, amint lehetőségem adódik, visszahívom.

További adatok

Telekterület: 965 m2
Kert mérete: 965 m2
Erkély mérete: 30 m2
Felszereltség: -
Parkolás: -
Kilátás: -
Egyéb extrák:  
-

Hirdető adatai

Hirdető neve: Otthon Centrum
Kapcsolattartó: Vajda Gábor
Hirdető telefonszáma: +36 70 461 9736
Honlap: -