Ház
Origó
HázOrigoval pont a központban

Tolna megye, Szekszárd


 

Ingatlan adatai

Irányár: 18 500 000 Ft
Típus: ház
Kategória: eladó
Alapterület: 76 m2
Fűtés: gáz (konvektor)
Állapota: -
Szobák száma: 2
Építés éve: 1960
Szintek száma: -

Részletes leírás

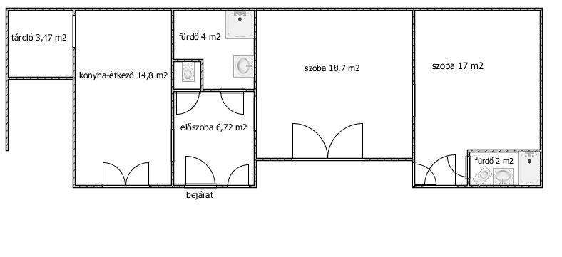
Az ingatlan egy családi ház elfelezésével lett kialakítva használati megosztással, elkerítve. /telekkönyvileg lakásként nyilvántartott/A házhoz nagy kert, tároló és füves telekrész is tartozik. A füves rész nincs bekerítve.A ház vegyes falazatú, egy részén szigetelés van. A nyílászárók 95%-a műanyag, hőszigetelt.A tető jó állapotú, cseréppel fedett.A jelenlegi tulajdonos újította fel tavaly.Két zuhanyzós fürdőszoba van a házban.A konyha -étkező tágas, mellette egy befejezetlen helyiség van, amiből még bármi lehet.A wc külön helyiségben is, és a fürdőben is bent van.Akár bútorokkal együtt is eladó.A két szoba egymás mellett van, de külön bejáraton át is megközelíthető a belső.Fűtése jelenleg konvektorokkal történik.Közelben buszmegálló van, de a Béla tér gyalogosan is csak 10 perc.Ha megnézné, hívjon bátran!Kedves Ügyfelünk, az ingatlanról videót is készítettünk. Ha ezt a hirdetést az Otthon Centrum weboldalán nézi, akkor a videóra a képek után tud kattintani. Ha egy másik weboldalon találta ezt a hirdetést, kérem nyissa meg az Otthon Centrum weboldalát, kattintson a „Regisztrációs szám keresése” menüpontra, és írja be ezt a regisztrációs számot a keresőbe: H502228 Itt meg tudja tekinteni az ingatlanról készült videót. Vagy írjon nekem, és szívesen elküldöm a videót.házrész csaldi ház vegyes 2 szoba két fürdő nagy udvar OC H502228

További adatok

Telekterület: 421 m2
Kert mérete: 421 m2
Erkély mérete: -
Felszereltség: -
Parkolás: -
Kilátás: -
Egyéb extrák:  
-

Hirdető adatai

Hirdető neve: Otthon Centrum
Kapcsolattartó: Dániel Lilla Anna
Hirdető telefonszáma: +36 70 388 6296
Honlap: -