Ház
Origó
HázOrigoval pont a központban

Budapest, XIV.kerület


 

Ingatlan adatai

Irányár: 66 500 000 Ft
Típus: lakás (tégla)
Kategória: eladó
Alapterület: 52 m2
Fűtés: gáz (konvektor)
Állapota: -
Szobák száma: 2
Építés éve: 1905
Szintek száma: -

Részletes leírás

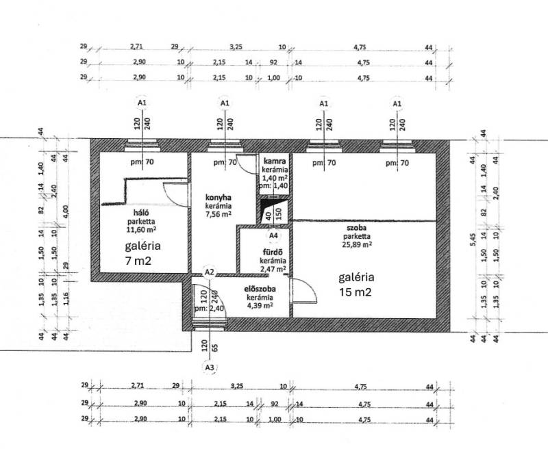
Eladásra kínálok Budapesten a XIV. kerület Istvánmező részén egy fiatalos, felújított lakást. A Thököly úton található 52 nm alapterületű lakás két galériával ellátott (7 nm és 15 nm), így összesen 74 nm területűre növekedett élettér minden igényt kielégít. A lakás igaz a Thököly út forgalmas részén helyezkedik el, de ablakai ősfás belső udvarra néznek és a műanyag nyílászárók és a thermo üvegezésnek köszönhetően csendes. Minden ablak szúnyoghálóval és aluminium redőnnyel felszerelt, a lakást az elmúlt években felújították és folyamatosan karban tartották. Az otthon melegéről gázkonvektor gondoskodik, melegvízről bojler. Nyári melegben mindkét szobában Daikin klíma hűti a lakást.Lakás részei:- előszoba- fürdőszoba- konyha- kamra- szoba 11.6 nm, melyhez 7 nm galéria tartozik- szoba 25,89 nm, melyhez 15 nm galéria tartozikNagyon jó elrendezésű otthon, hiszen egyszerre rendelkezik egy konyha-étkezővel, kamrával, fürdőszobával, dolgozó- és gardrób szobával, világos nappalival és két hálórésszel a galérián.A ház, melyben a lakás található, a XX. század elején épült neobarokk stílusú épület, mely a kor eleganciáját tükrözi. Az épület tégla építésű, masszív szerkezetű, folyamatosan karban tartott. A lakás a belső udvaros körfolyosóról nyílik, előnye, hogy nem nyílik egy ablaka sem a folyosóra, így nem látnak be a lakók életterébe! Lakóközössége rendes és csendes. Gondnok, közös képviselő a házban lakik, a háznak van megtakarított pénze, melyből folyamatos újítások történnek.Ingatlan kiváló elhelyezkedése miatt a tömegközlekedés egyszerű, a közelben trolibuszok, villamosok, buszok segítik az utazót. Autó parkolása utcán, a közelben erre több lehetőség is van.Közelben a Stefánia palota, több étterem, bisztró, boltok, cukrászda, fagyizó, gyógyszertár, Récsei Cenrter és Városliget kisebb sétára.Ajánlom ezt az otthont mindazoknak, akik szeretik Budapest nyüzsgő vérkeringését, mégis haza érve egy csendes, fiatalos, tágas terekkel rendelkező lakást szeretnének. Ajánlom fiatal pároknak, kis családnak, de befektetés vagy lakáskiadás céljára is kiváló. Budapest ezen istvánmezei részén ritkán eladók az ingatlanok, mert a kitűnő lokációnak, környék kultúrális eseményeinek köszönhetően közkedvelt része Budapestnek, az itt lakók ritkán válnak meg szeretett otthonuktól.Jöjjön el és nézze meg ezt az otthont, szeressen bele és éljen itt boldogan!Intor Ingatlan - Otthont biztonságban!Irodánk az értékesítés első lépésétől az utolsóig az Ön rendelkezésére áll. Amennyiben egy megbízható irodával szeretne együttműködni, amely teljes körű ügyintézést biztosít - hitelügyintézést is - megfelelő áron, forduljon hozzánk bizalommal!

További adatok

Telekterület: -
Kert mérete: -
Erkély mérete: -
Felszereltség: -
Parkolás: -
Kilátás: udvari
Egyéb extrák:  
-

Hirdető adatai

Hirdető neve: Intor Ingatlan Powered By RH
Kapcsolattartó: Kertész Rebeka
Hirdető telefonszáma: +36 70 467 6820
Honlap: -