Ház
Origó
HázOrigoval pont a központban

Zala megye, Söjtör


 

Ingatlan adatai

Irányár: 11 900 000 Ft
Típus: ház
Kategória: eladó
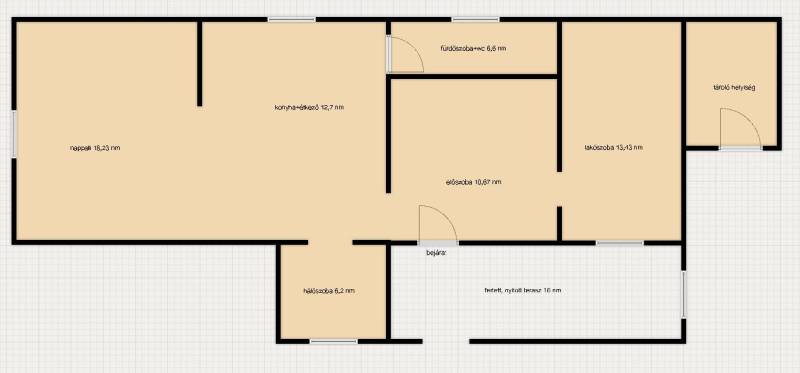
Alapterület: 68 m2
Fűtés: egyéb
Állapota: -
Szobák száma: 3
Építés éve: 1953
Szintek száma: -

Részletes leírás

Eladásra kínálom ezt a tégla építésű családi házat, mely Zala vármegye, a gyönyörű Söjtör településén található, ahol a természet közelsége és a csendes környezet garantálja a nyugodt életmódot. Az ingatlan alapterülete 67,83 négyzetméter, amely három szobát, előszobát és egy fürdőszobát +wc foglal magában. A ház átlagos állapotú, így lehetőséget kínál az új tulajdonos számára, hogy saját ízlésének megfelelően alakítsa át. Az ingatlanban 2020-ban villanyvezeték, 2004-ben vízrendszer, 2017-ben ablakok, bejárati ajtó cseréje megtörtént. A belső terek részben belső szigetelést kaptak. Az ablakok jó minőségű fakerettel rendelkeznek. A ház belső munkálatai még befejezésre várnak, így igény esetén kevés ráfordítással modernizálható! A 1916 négyzetméteres telek (egy része le van kertelve) lehetőségei szinte végtelenek, legyen szó egy szép kert kialakításáról vagy akár egy terasz bővítéséről, ahol a naplementét élvezheti. A telek síknak mondható, melyen sokfajta gyümölcsfa lett telepítve.A 16 négyzetméteres terasz ideális helyszín a reggeli kávézásra vagy a barátokkal való összejövetelekre, miközben a környező táj panorámája lenyűgöző látványt nyújt. A ház fűtése fa- és szénkályhával megoldott, amely nemcsak gazdaságos, hanem a hagyományos vidéki életérzést is megidézi. Söjtör települése nemcsak a természet közelsége miatt vonzó, hanem a közlekedési lehetőségei révén is. A település jól megközelíthető autóval, és a közeli városok, mint Zalaegerszeg (20 perc autóval) könnyen elérhetők. A tömegközlekedési lehetőségek is biztosítottak, így a mindennapi ingázás sem jelent problémát. A környék csendes és biztonságos, ideális családok számára, akik a nyugalmat keresik. A helyi közösség barátságos, és számos szabadidős tevékenység áll rendelkezésre, beleértve a kirándulásokat és a kerékpározást a környező erdőkben. A közeli boltok, iskolák és orvosi rendelők könnyen elérhetők, így minden szükséges szolgáltatás a közelben található. Ez az ingatlan tökéletes választás lehet magánszemélyeknek, akik saját otthont keresnek, vagy befektetőknek, akik a vidéki élet szépségeit szeretnék kihasználni. Ha kérdései lennének az ingatlannal vagy a vásárlási folyamattal kapcsolatban, kérem, ne habozzon felkeresni! Bizalommal állok rendelkezésére, hogy segítsek Önnek megtalálni álmai otthonát vagy befektetését.

További adatok

Telekterület: 1 916 m2
Kert mérete: 1 916 m2
Erkély mérete: 16 m2
Felszereltség: -
Parkolás: -
Kilátás: -
Egyéb extrák:  
-

Hirdető adatai

Hirdető neve: Otthon Centrum
Kapcsolattartó: Pölhösné Csilla
Hirdető telefonszáma: +36 70 716 8481
Honlap: -