Ház
Origó
HázOrigoval pont a központban

Budapest, XVI.kerület


 

Ingatlan adatai

Irányár: 299 000 000 Ft
Típus: ház
Kategória: eladó
Alapterület: 224 m2
Fűtés: -
Állapota: -
Szobák száma: 5
Építés éve: 2025
Szintek száma: -

Részletes leírás

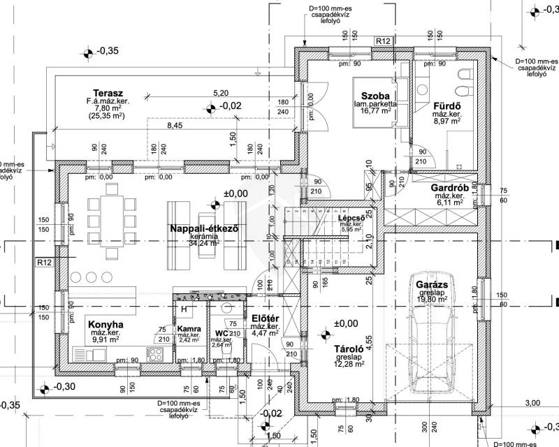
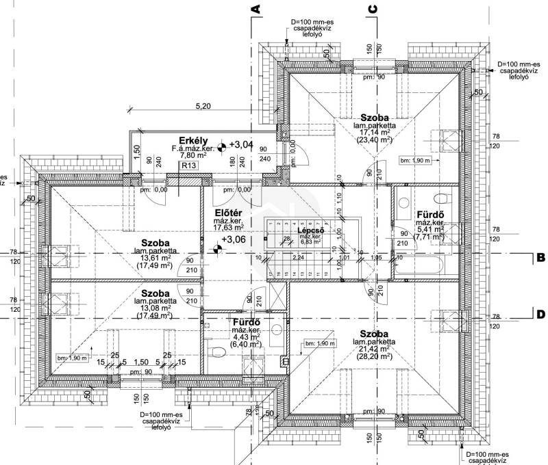
Építés alatt álló, két szintes, 5 hálószobás modern családi ház eladó a 16. kerületben.Keresi a tökéletes családi otthont Budapest egyik legértékesebb és legbarátságosabb zöldövezeti részén?Most megtalálta!Megvételre kínálunk egy építés alatt álló, önálló családi házat a XVI. kerületi Sashalom legszebb, legnyugodtabb részén, alig pár lépésre Mátyásföldtől. A környék családbarát, biztonságos, a közelben iskola, óvoda, bevásárlási lehetőség és kiváló tömegközlekedés található.Az ingatlan főbb jellemzői:- Nettó 224 m² hasznos alapterület modern, átgondolt térkialakítással.- 25 m² terasz és erkély, ideális reggeli kávéhoz vagy esti pihenéshez.- 617 m²-es önálló telek, ebből 370 m² privát zöldfelület.- Összesen 5 hálószoba (földszinten 1, emeleten 4) – nagyobb család számára is tökéletes választás.- 3 fürdőszoba + WC, minden családtagnak kényelmes megoldást nyújt.- Tágas nappali és konyha-étkező, valamint tároló és garázs.Korszerű, energiatakarékos műszaki tartalom:- Hőszivattyús rendszer fűtéshez, hűtéshez és melegvízhez.- 3×25 A elektromos ellátás, normál és H tarifa biztosítja a költséghatékony üzemeltetést.- Energiatakarékos megoldások, alacsony rezsiköltség.Miért most érdemes lépni?Az építkezés már zajlik – várható költözés 2026-ban.Most még van lehetőség beleszólni a részletekbe, így az otthon teljes mértékben az Ön igényeihez igazítható.

További adatok

Telekterület: 617 m2
Kert mérete: 617 m2
Erkély mérete: -
Felszereltség: -
Parkolás: -
Kilátás: kertre néző
Egyéb extrák:  
-

Hirdető adatai

Hirdető neve: Most Home Kft.
Kapcsolattartó: Hatalyák Dalma
Hirdető telefonszáma: +36 70 412 5655
Honlap: -