Ház
Origó
HázOrigoval pont a központban

Heves megye, Hatvan


 

Ingatlan adatai

Irányár: 73 900 000 Ft
Típus: ház
Kategória: eladó
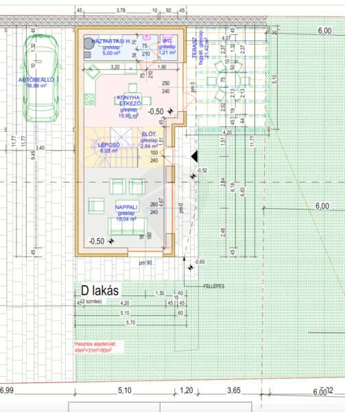
Alapterület: 80 m2
Fűtés: -
Állapota: új
Szobák száma: 2+1
Építés éve: 2025
Szintek száma: -

Részletes leírás

*** Újépítésű igényes sorházi lakás saját kertrésszel eladó! ***Hatvan központjában a Dobó téren kínálunk eladásra egy nettó 80 m2-es sorházi lakást, saját kertrésszel. Utolsó megvásárolható ingatlan a projektből. A tetőtérben kerülnek kialakításra a hálószobák. A kellemes nyári-téli hőérzetről HŐSZIVATTYÚS rendszer fog gondoskodni. Az épület modern technológiával épül, ezáltal kedvező ENERGIAHATÉKONYSÁGÚ lesz. Minden ingatlanhoz saját térkövezett kocsibeálló tartozik és egy ideális méretű TERASZ kerül kialakításra. A beruházó/kivitelező megbízható, Hatvan környékén több referenciával is rendelkezik. A komfortosságot növeli a 2 fürdőszoba. (Földszinten zuhanyzó kerül beépítésre, a tetőtérben pedig kád lesz) A lakás (utcafronti) - 49+31 m2, nappali + konyha, 2 hálószoba, 2 fürdőszoba, wc, háztartási helyiségekből áll. - Irányár: 73.900.000 FtKözintézmények, iskolák, üzletek, kórház karnyújtásnyira találhatóak, illetve a korszerű kivitelezése miatt hosszútávon értékálló befektetés lesz. Várható befejezés 2026. Március-Április!További információért hívjon bizalommal!

További adatok

Telekterület: 250 m2
Kert mérete: 250 m2
Erkély mérete: 21 m2
Felszereltség: -
Parkolás: -
Kilátás: kertre néző
Egyéb extrák:  
-

Hirdető adatai

Hirdető neve: Ingatlanmentor powered by Rock Home
Kapcsolattartó: Horváth Tibor
Hirdető telefonszáma: +36 70 467 6871
Honlap: -