Ház
Origó
HázOrigoval pont a központban

Pest megye, Csömör


 

Ingatlan adatai

Irányár: 59 900 000 Ft
Típus: telek
Kategória: eladó
Alapterület: 804 m2
Fűtés: -
Állapota: -
Szobák száma: -
Építés éve: -
Szintek száma: -

Részletes leírás

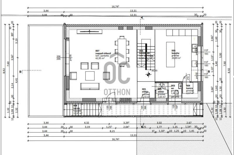
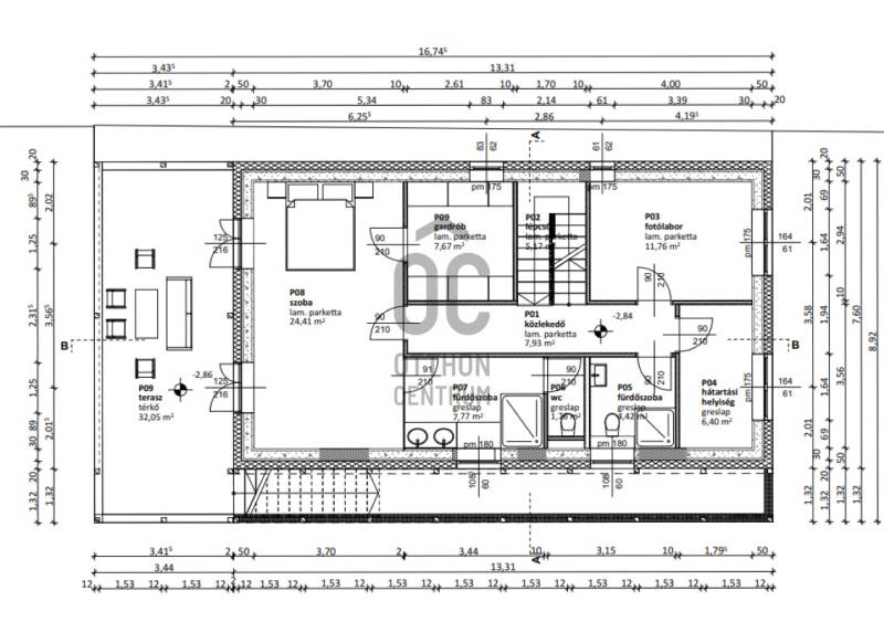
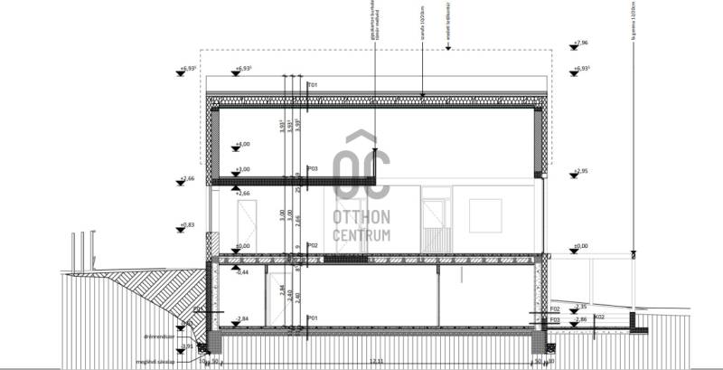
CSÖMÖRÖN, CSENDES UTCÁJÁBAN! Eladó egy szerkezetkész ház, teljes tervdokumentációval!Eladásra kínálunk egy 804 nm-es, összközműves telket, melyen található egy szerkezetkész ingatlan, amely egyedi tervek alapján készült, masszív, stabil alapra, ami egy igazán különleges otthon alapjait képezi.Az ingatlan egy nyugodt, csendes utcában helyezkedik el. Ideális választás mindazok számára, akik szeretnék saját elképzeléseik szerint befejezni új otthonukat.Ingatlan paraméterek:Telek mérete: 804 m²A házhoz teljeskörűen megtervezett építési és engedélyezési tervek állnak rendelkezésre, amik a településképi véleményezés által is el lettek fogadva, így az új tulajdonosnak már csak a kiviteli terveket kell megcsináltatnia.Tervezett ingatlan paraméterei: 3 x 77 nm, egy nyitott galériával, ahol ki lehet alakítani akár szobákat is. A fűtés hőszivattyúval van megtervezve.Kivitelezési lehetőségek: Az épület modern, egyedi tervek szerint készült, amik az optimális térkihasználást és funkcionalitást célozzák meg, mégis maximálisan lehetőséget biztosítanak a személyre szabott kivitelezésre.Kiemelt előnyök:Csendes környék, a telek egy nyugodt, forgalommentes utcában található, ahol a mindennapi élethez szükséges kényelmet és nyugalmat biztosítja a környezet.Közel a városhoz, a buszvégállomáshoz, boltokhoz, óvodához, mégis a természet közelében: Az ingatlan elhelyezkedése ideális azoknak, akik a város közelségét szeretnék élvezni, de értékelik a zöld környezetet és a nyugodt lakóhelyet.Ez a kivételes ingatlan lehetőséget biztosít arra, hogy a leendő tulajdonos egy saját igényeire szabott, prémium minőségű otthont valósítson meg.Az ingatlan felépítését is tudjuk vállalni, kulcsrakész állapotban az ára: 169 Mft.Ne hagyja ki ezt a ritka lehetőséget és lépjen kapcsolatba velünk további információkért!Ez az ingatlan a \"Felező csomag\" megbízási portfólióhoz tartozik. Részletek az Otthon Centrum weboldalán.

További adatok

Telekterület: 804 m2
Kert mérete: -
Erkély mérete: -
Felszereltség: -
Parkolás: -
Kilátás: -
Egyéb extrák:  
-

Hirdető adatai

Hirdető neve: Otthon Centrum
Kapcsolattartó: Mészáros Anita
Hirdető telefonszáma: +36 70 388 5346
Honlap: -