Ház
Origó
HázOrigoval pont a központban

Komárom-Esztergom megye, Kesztölc


 

Ingatlan adatai

Irányár: 24 900 000 Ft
Típus: ház
Kategória: eladó
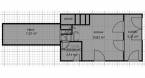
Alapterület: 33 m2
Fűtés: elektromos
Állapota: -
Szobák száma: 2
Építés éve: 1960
Szintek száma: -

Részletes leírás

✨ Eladó hangulatos ingatlan Kesztölcön – csendes, hegyvidéki környezetben! ✨✅ Helyszín: Kesztölc, Komárom–Esztergom vármegye – természetközeli, nyugodt rész✅ Alapterület/Telek: 33 m² • 20 m²✅ Elrendezés: 2 szoba, praktikus kialakítás✅ Állapot: jó, azonnal költözhető✅ Fűtés: elektromos fan-coil✅ Tehermentes ingatlan✅ Kisállatbarát otthonKörnyezet és elérhetőség: csendes, biztonságos környék; a település autóval és tömegközlekedéssel is könnyen megközelíthető. A közelben boltok, iskola és egészségügyi szolgáltatások elérhetők.⌂ Személyes megtekintés lehetséges; kérdéseire szívesen válaszolunk.⏳ Az ilyen adottságú ingatlanok gyorsan gazdára találnak – érdemes időben lépni!⚖️ Vásárlását pénzügyi és jogi háttérrel biztosítjuk.☎ Hívjon bizalommal!H–P 09:00–17:00, Sz 09:00–13:00✉️ Az adott időpontokon kívül vagy ha nem ér el, kérem, SMS-ben jelezze érdeklődését a 06 70 417 8069-es számon az ingatlan regisztrációs számának feltüntetésével. Amint tudom, visszahívom.

További adatok

Telekterület: 20 m2
Kert mérete: 20 m2
Erkély mérete: -
Felszereltség: -
Parkolás: -
Kilátás: -
Egyéb extrák:  
-

Hirdető adatai

Hirdető neve: Otthon Centrum
Kapcsolattartó: Borza Gábor
Hirdető telefonszáma: +36 70 716 8126
Honlap: -