Ház
Origó
HázOrigoval pont a központban

Somogy megye, Siófok


 

Ingatlan adatai

Irányár: 139 000 000 Ft
Típus: ház
Kategória: eladó
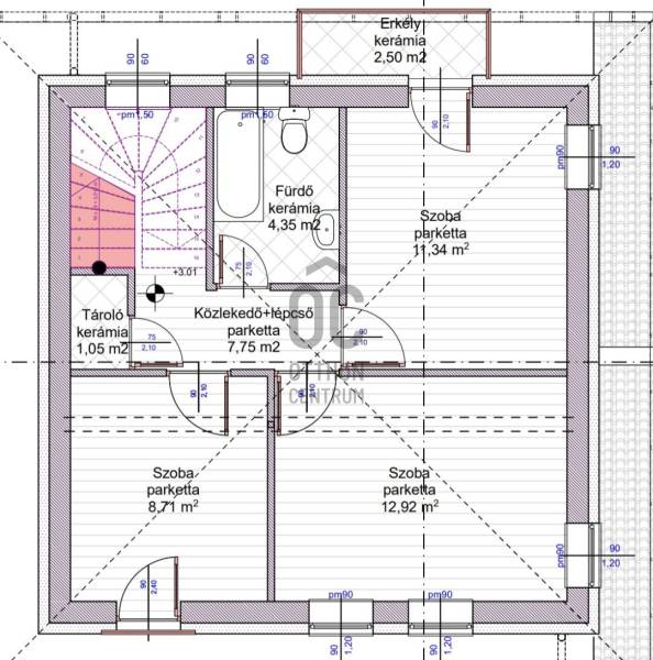
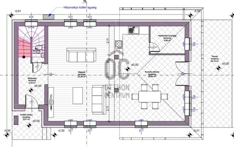
Alapterület: 130 m2
Fűtés: -
Állapota: új
Szobák száma: 4
Építés éve: 2025
Szintek száma: -

Részletes leírás

Eladásra kínáljuk Siófokon 130 m²-es kétszintes családiház projektünket‼️Aki álmai otthonát keresi Siófokon az most megtálja nálunk amire mindig is vágyott✅️Most még választható stílusban, lent szerepelt látványtervek alapján!Ami egy luxury és egy minimalista stílust ábrázol, most még olyanra alakíthatja ingatlanát amilyenre szeretné.Építkezés kezdete: 2026, Február.Így még bőven van ideje gondolkozni a befejezésen!.Az elkezdés követően 4-6 hónapos átadási idővel tudjuk átadni kulcsrakészen a leendő tulajdonosának! LEIER 30-as zsalukőből, és 30-as Ytong falazatból fog felépülni az ingatlanunk????Ezen kívül 15-cm-es homlokzati és 10-cm-es lábazati szigeteléssel lesz ellátva otthonunk.Korszerű hűtés/fűtés amit egy 10 kw-os hőszivattyús rendszer fog ellátni.Padlófűtés ami garantálja a meleget, ehhez biztosítunk \"H\" tarifás órát is hogy energiatakarékos maradjon minden évszakban az épület✅️♻️Az ingatlant még idén van lehetőség foglalózni, Akár a piac összes hitelprogramjával????Ajánlat kéréssel kapcsolatos ügyben, vagy ha több információra lenne szüksége kérem keressen a megadott elérhetőségeken✉️

További adatok

Telekterület: 400 m2
Kert mérete: 400 m2
Erkély mérete: 26 m2
Felszereltség: -
Parkolás: -
Kilátás: -
Egyéb extrák:  
-

Hirdető adatai

Hirdető neve: Otthon Centrum
Kapcsolattartó: Bezzeg Nikoletta
Hirdető telefonszáma: +36 70 716 8431
Honlap: -