Ház
Origó
HázOrigoval pont a központban

Budapest, X.kerület


 

Ingatlan adatai

Irányár: 149 900 000 Ft
Típus: lakás (tégla)
Kategória: eladó
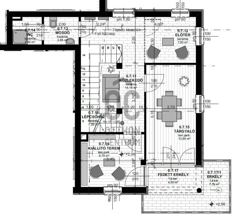
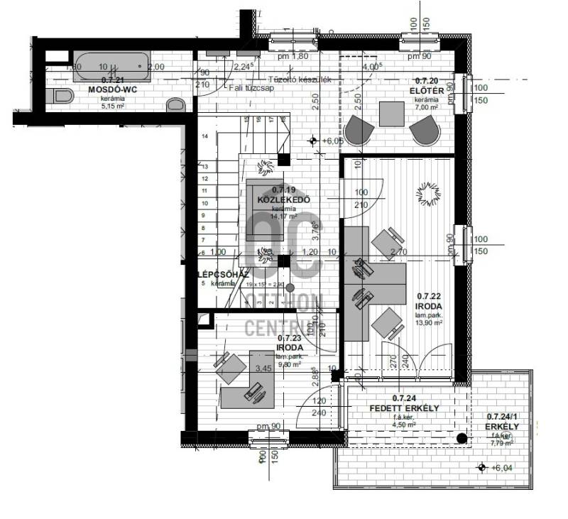
Alapterület: 159 m2
Fűtés: házközponti egyedi méréssel
Állapota: -
Szobák száma: 7
Építés éve: 2022
Szintek száma: -

Részletes leírás

Egy igazán különleges ingatlant ajánlok figyelmedbe, amely nemcsak családosok számára ideális, hanem befektetési célokra is remek lehetőséget kínál. Budapest X. kerületének felkapott részén, Újhegyen található ez az új, modern lakás, amely nettó 159 négyzetméteren (teraszok nélkül!!) terül el, és minden igényt kielégít. A belső három szintes lakásban 7 szoba és 3 fürdőszoba található, így bőven van hely a család minden tagjának, legyen szó akár gyerekekről, akár vendégekről. Home Office? Nem gond! Vagy olyan otthont keresel, ahol a vállalkozásodat is kézben tudod tartani? Vagy csak nagy a család és sok szobára van szükség, hogy mindenkinek legyen privát része, vagy több generációnak is alkalmas legyen? Megtaláltad! Minden szinten található terasz, mely több szobából is megközelíthető, ami a pihenés és a kikapcsolódás tökéletes helyszínéül szolgál, ahol a tóra néző kilátásban gyönyörködhetsz. Földszinten közvetlen kijárás van a fedett teraszra, ill. a saját kertrészhez.A lakás kiváló állapotban van, jogilag új ingatlan. Házközponti fűtéssel (padlófűtés, minden helyiségben!!) és egyedi méréssel, valamint minden szoba klímával szerelve, így a hőmérséklet mindig kellemes lesz és mindenki a saját igényei szerint állíthatja. A lakópark, amelyben az ingatlan helyezkedik el, exkluzív környezetet biztosít, modern megjelenésével és világos tereivel. A környék ellátottsága kiváló, a közeli közlekedési csomópontnak (KÖKI) köszönhetően kitűnő közlekedési lehetőségek állnak rendelkezésre, így a város bármely pontja könnyen megközelíthető. A közelben található boltok, iskolák, óvodák és egészségügyi intézmények mind hozzájárulnak ahhoz, hogy a mindennapok kényelmesen teljenek. A csendes, biztonságos környék pedig ideális otthont biztosít a családok számára. Ez a tehermentes ingatlan nemcsak a saját otthonod lehet, hanem remek befektetési lehetőség is, hiszen a felkapott környék folyamatosan fejlődik, így az ingatlan értéke is biztosan növekedni fog. Ha kérdéseid lennének, vagy szeretnéd személyesen is megtekinteni ezt a különleges lakást, bátran keresd meg a megadott elérhetőségek egyikén! A bizalom és a szakértelem a legfontosabb számunkra, és örömmel segítünk bármilyen információval, amire szükséged lehet. Ne hagyd ki ezt a lehetőséget, hiszen egy ilyen ingatlan ritkán kerül a piacra!

További adatok

Telekterület: -
Kert mérete: -
Erkély mérete: 32 m2
Felszereltség: -
Parkolás: -
Kilátás: utcai
Egyéb extrák:  
-

Hirdető adatai

Hirdető neve: Otthon Centrum
Kapcsolattartó: Urbán Ákos
Hirdető telefonszáma: +36 70 412 4461
Honlap: -