Ház
Origó
HázOrigoval pont a központban

Hajdú-Bihar megye, Mikepércs


 

Ingatlan adatai

Irányár: 229 000 000 Ft
Típus: ház
Kategória: eladó
Alapterület: 210 m2
Fűtés: elektromos
Állapota: -
Szobák száma: 4
Építés éve: 1970
Szintek száma: -

Részletes leírás

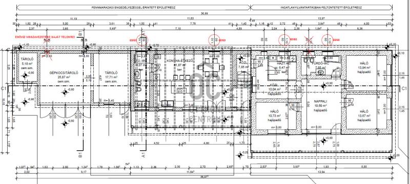
Debrecen belvárosától 8 km - re, Mikepércs főutcáján, a Debrecen felőli részén eladó, egy 2020 - ban teljeskörűen felújított, illetve megépített önálló \" A \" energetikai besorolású családi ház A 13 kw napelem konkrétran az egyész ingatlan villamosellátását biztosítja, éves szaldós elszámolású, nulla költséggel üzemeltethető minden.A lakóingatlant 2 részre bontanám :Az első rész : vízszigetelt, komoly beton alapra, 45 cm - es korszerű vályogfalból épített lakóegység, amely falazata kapott + 5 cm kőzetgyapot szigetelést + üvegszállal kevert nemes vakolatot, a födém 10 cm therwoolinnal szigetelve + a tetőszerkezet : 18 cm-es szigetelt szendvicspanelből készült , egyszóval, fullos a szigetelése, télen jó meleg, nyáron jó hűvös ez a lakórész.A másik rész : beton alapra tégla falazat került, ez is 5 cm - es kőzetgyapottal lett szigetelve, és szintén üvegszállal kevert nemes vakolatottal lett szinezve. Ebbe a részbe klíma lett telepítve.A két rész természetesen egybe van építve, csak az eltérő falazata miatt akartam különbontani. ( alaprajzot csatoltam )Amúgy a két egységet minimális átalakítással két külön lakásként is lehet használni.A telek : 1529 m2, ezen a lakóingatlan : 210 m2, + 4 autó elhelyezésére alkalmas garázsok, és egy tároló található .A kertben kialakításra került egy játszókert főzőrésszel, kerti tó, illetve udvarrész gyümölcsfákkal.A ház helyiségei : 60 m2 - es konyha - étkező, nappali, 3 szoba, 2 fürdőszoba wc - vel , háztartásihelyiség, terasz.Fűtése : minden helyiségekben : elektromos padlófűtés, 1 szobában : radiátorMűszaki tartalom : 3 rtg hő és hangszigetelt műanyag nyílászárók elektromos aluredőnnyel, szúnyoghalóval szerelve, egyedi beltéri ajtók, minőségi burkolatok, a vételár részét képezik a függönykarnisok, függönyök, lámpák. A bútorzat, és a gépek megegyezés tárgyát képezik, ha okés, maradhat.Az ingatlanban minden is új, a mai kornak megfelelő anyagok lettek beépítve.Még írhatnék róla, de inkább szóban a többit.Az ingatlan természetesen család lakhatására kitünő opció, de más funkcióra is hasznosítható Pl : panzió, és / vagy vendéglátóegység, akár étterem, kifőzde, pizzázó, illetve a szerelő aknás dupla garázs, amely hűtő - fűtő légkondival , wc - vel, melegvizes kézmosóval felszerelt, akár szerelőműhelynek is alkalmas, de még mellette lévő garázs is jó lehet e célra.CSERE INGATLAN IS ÉRDEKEL : KESZTHELYTŐL - SZIGLIGETIG , PANORÁMÁS CSALÁDI HÁZ ÉRTÉKEGYEZTETÉSSEL, MAX EDDIG AZ ÉRTÉKHATÁIG.Ha felkeltettem az érdeklődését, kérem hívjon bizalommal.

További adatok

Telekterület: 1 529 m2
Kert mérete: 1 529 m2
Erkély mérete: 10 m2
Felszereltség: -
Parkolás: -
Kilátás: -
Egyéb extrák:  
-

Hirdető adatai

Hirdető neve: Otthon Centrum
Kapcsolattartó: Tóth Ferenc
Hirdető telefonszáma: +36 70 716 9076
Honlap: -