Ház
Origó
HázOrigoval pont a központban

Pest megye, Dömsöd


 

Ingatlan adatai

Irányár: 117 600 000 Ft
Típus: ház
Kategória: eladó
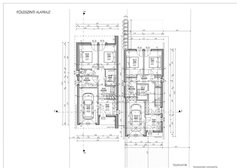
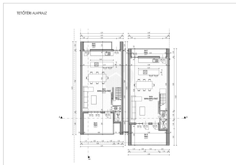
Alapterület: 170 m2
Fűtés: -
Állapota: új
Szobák száma: 3
Építés éve: 2025
Szintek száma: -

Részletes leírás

Exkluzív, Új Építésű Otthon Dömsöd Prémium LakóövezetébenDömsöd egyik legkeresettebb, csendes és mégis dinamikusan fejlődő környékén, a Nyárfa sétányon kínáljuk eladásra ezt a modern, prémium kivitelezésű lakóingatlant. Az 570 m²-es telken elhelyezkedő exkluzív ikerház tökéletes választás azok számára, akik elegáns és kényelmes otthont keresnek természetközeli, nyugodt környezetben.Félkész vagy kulcsrakész állapotban elérhető!A ház jelenlegi állapotában is megvásárolható, de igény esetén kulcsrakész kivitelben is elérhető, amelynek ára 850.000 Ft/m² / ikerházrész. A mellékelt fotók az aktuális építési állapotot mutatják, míg a látványtervek a végleges, igényes kialakítást szemléltetik.Innovatív Építéstechnológia – Gyors és Tartós MegoldásA ház építéséhez nagyméretű keramzitbeton falelemeket használunk, amelyek kiváló hő- és hangszigetelő tulajdonságaikkal, valamint tartósságukkal emelik az ingatlan értékét. Az építési technológia akár 50%-kal gyorsabb kivitelezést tesz lehetővé a hagyományos módszerekhez képest, miközben biztosítja a kiemelkedő energiahatékonyságot és hosszú élettartamot.A keramzit egyik legnagyobb előnye, hogy:✔ Könnyű, mégis rendkívül tartós✔ Fagyálló és nem éghető✔ Páraáteresztő, így a penész és gombásodás ellen is véd✔ Kiváló hő- és hangszigetelő képességekkel rendelkezik✔ Nem bocsát ki káros anyagokat, így allergiások számára is ideálisModern és Elegáns ÉletterekA letisztult, modern kialakítású otthon tágas, világos nappalival és amerikai konyhával rendelkezik, amely ideális helyszín a családi és baráti összejövetelek számára. A tetőteraszról páratlan kilátás nyílik a Dunára, amely különleges atmoszférát teremt a mindennapokban. A kertkapcsolatos elrendezés lehetőséget biztosít a szabadtéri pihenésre, a családias hangulatra, miközben a környék csendje és biztonsága garantálja a zavartalan kikapcsolódást.Prémium FelszereltségParkolás – Saját egyállásos garázsFűtés és hűtés – Levegő-víz hőszivattyús rendszer, padló- és mennyezetfűtés-hűtésBiztonság – Riasztórendszer, kamerás kaputelefonNyílászárók – Prémium minőségű, hőszigetelt ablakok, elektromos redőnyökSzigetelés – 20 cm-es EPS hőszigetelésElhelyezkedés és KörnyezetA Duna közelsége egyedülálló hangulatot kölcsönöz az ingatlannak, miközben a környék nyugalma és biztonsága tökéletes életkörnyezetet teremt családok számára. A környék infrastrukturális adottságai kiválóak:Könnyű megközelíthetőség autóval és tömegközlekedéssel egyarántIskolák, óvodák, üzletek és szolgáltatások néhány percen belül elérhetőkTermészetközeli életérzés a város nyüzsgése nélkülAzonnal Költözhető – Befektetésnek is Kiváló Lehetőség!Ez az ingatlan nem csupán egy otthon, hanem egy életstílus megtestesítője. A tehermentes ingatlan azonnal birtokba vehető, így nem kell hónapokat várnia álmai otthonára.Ha szeretné személyesen is megtekinteni ezt a különleges ajánlatot, vagy további kérdése van, keressen bizalommal! Segítünk, hogy megtalálja az ideális otthont vagy a tökéletes befektetési lehetőséget.

További adatok

Telekterület: 570 m2
Kert mérete: 570 m2
Erkély mérete: 22 m2
Felszereltség: -
Parkolás: -
Kilátás: panorámás
Egyéb extrák:  
-

Hirdető adatai

Hirdető neve: Rock Home
Kapcsolattartó: Balogh Csaba
Hirdető telefonszáma: +36 70 412 5733
Honlap: -