Ház
Origó
HázOrigoval pont a központban

Tolna megye, Paks


 

Ingatlan adatai

Irányár: 64 000 000 Ft
Típus: ház
Kategória: eladó
Alapterület: 170 m2
Fűtés: gáz (cirko)
Állapota: -
Szobák száma: 4
Építés éve: 1982
Szintek száma: -

Részletes leírás

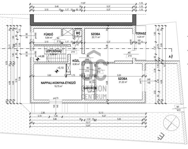
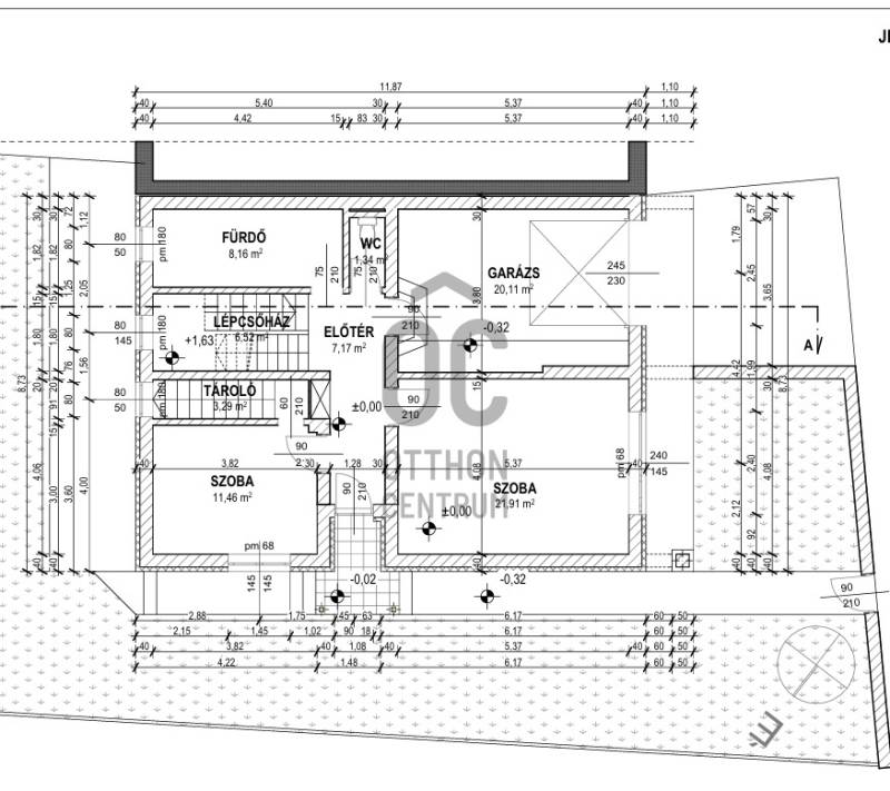
Pakson eladó sorba került ez a 4 szobás + nappali-étkező-konyhás , alagsor, földszint, emelet elosztású , részben felújított ikerház.A nyílászárók műanyagok, a ház szigetelt, fűtés gáz-cirko, radiátorokon keresztül adja le a hőt. A házban garázs is található.A ház jó környéken , könnyen megközelíthető helyen, 511 nm-es telken várja új tulajdonosát.Megtekintésért kérem hívjon a megadott számon H497525Teljes körű pénzügyi megoldások ügyintézése díjmentesen.Minden élethelyzetre végzünk pénzügyi elemzést - ha vásárolni szeretnél, segítünk, hogy ezt a legjobb feltételek mellett tedd; ha eladni szeretnéd ingatlanod, nézzük meg, hátha érdemes meglévő hiteledet átváltani.Keress bizalommal, szakértők vagyunk..

További adatok

Telekterület: 511 m2
Kert mérete: 511 m2
Erkély mérete: 4 m2
Felszereltség: -
Parkolás: -
Kilátás: -
Egyéb extrák:  
-

Hirdető adatai

Hirdető neve: Otthon Centrum
Kapcsolattartó: Szélesné Varga Ilona
Hirdető telefonszáma: +36 70 388 5761
Honlap: -