Ház
Origó
HázOrigoval pont a központban

Pest megye, Aszód


 

Ingatlan adatai

Irányár: 105 000 000 Ft
Típus: ház
Kategória: eladó
Alapterület: 257 m2
Fűtés: gáz (cirko)
Állapota: felújított
Szobák száma: 8
Építés éve: 2003
Szintek száma: -

Részletes leírás

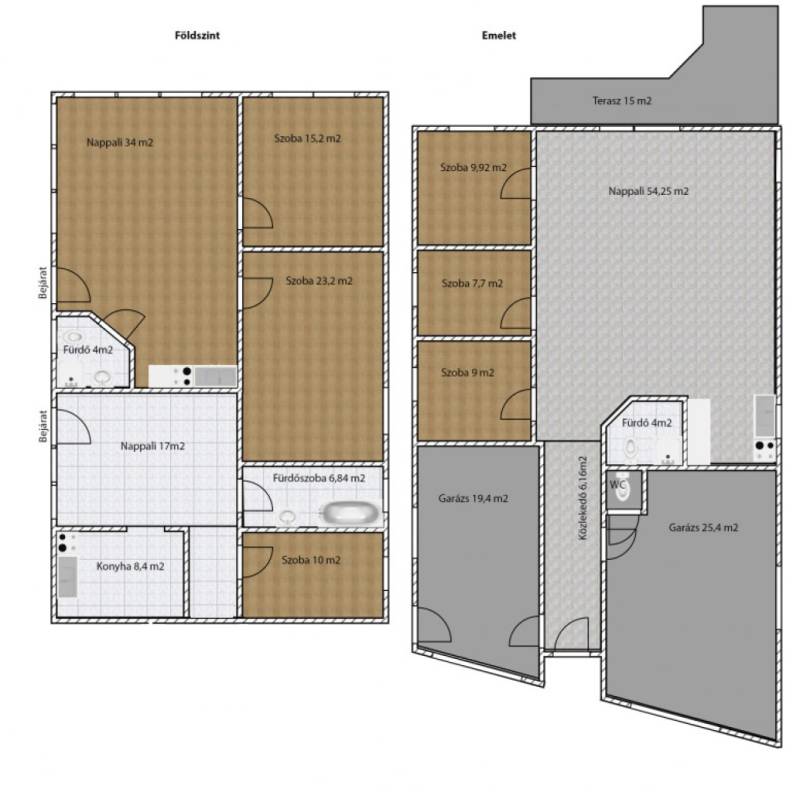
Aszódon a Béke utcába 8. szám alatt 381 m2-es összközműves telken eladó egy panorámás, három generációs tégla építésű, kétszintes családi ház.Az ingatlant 2006-ban újították fel, dryvit szigeteléssel lett ellátva, nyílászárói fa és műanyag thermo kivitelűek. Fűtését és meleg víz ellátását 2017-ben korszerűsített 2db kondenzációs kombi gázkazán látja el.A felső lakás 136 m2-es, ami magába foglalja a két fűtött garázst is (19,4, 25,4m2), melyek elektromos garázsajtóval lettek ellátva. Az 54m2-es nappaliból gyönyörű panoráma látható a 15 m2-es terasz irányába. A 9,92 m2-es hálószoba is panorámás kilátással rendelkezik. További két szoba található ezen a szinten és egy igényes anyagokkal felújított fürdőszoba is. Az alsó szinten két lakás helyezkedik el. A nagyobbik (76m2)szintén panorámás kilátással rendelkezik. Itt 32,6 m2-es amerikai konyhás nappali és két nagy szoba (15,2m2, 23,2m2) és egy 5 m2-es fürdőszoba lett kialakítva.A harmadik lakás 45,3 m2-es. Itt 17 m2-es a nappali 8,4m2-es részben egybenyitott konyhával, 10 m2-es szoba és közlekedő és egy 7m2-es fürdőszoba taláható!Számos beépített bútor és a három konyha is a vételár részét képezik.A közművek almérőkkel rendelkeznek. A kertben a beton burkolatú udvar rész alatt 30m2 tárolásra alkamas helyiség van. Amennyiben hirdetésem felkeltette az érdeklődését vagy egyéb információra van szüksége ,hívjon bizalommal!

További adatok

Telekterület: 381 m2
Kert mérete: 381 m2
Erkély mérete: 15 m2
Felszereltség: -
Parkolás: -
Kilátás: panorámás
Egyéb extrák:  
-

Hirdető adatai

Hirdető neve: GDN Ingatlanhálózat
Kapcsolattartó: Horváth Péter
Hirdető telefonszáma: +36-70-606-2990
Honlap: -