Ház
Origó
HázOrigoval pont a központban

Nógrád megye, Rétság


 

Ingatlan adatai

Irányár: 129 900 000 Ft
Típus: ház
Kategória: eladó
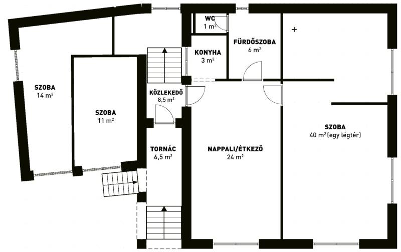
Alapterület: 110 m2
Fűtés: gáz (cirko)
Állapota: -
Szobák száma: 3
Építés éve: 1965
Szintek száma: -

Részletes leírás

VÁLLALKOZÓK, INGATLANFEJLESZTŐK FIGYELEM ! KIVÁLÓ BEFEKTETÉSI LEHETŐSÉG RÉTSÁG KÖZPONTJÁBAN !FELÚJITOTT CSALÁDI HÁZ, IRODA,RAKTÁR,ÉPÍTÉSI TELEK EGYBEN !Rétság központi részén kínáljuk megvételre ezt az egyedi adottságú 2834nm-es ingatlant, ami két helyrajzi számon található.Az 1908nm-es telken található egy háromszobás 110nm-es felújított családiház garázzsal,valamint egy 500nm-es összközműves raktárcsarnok, több irodahelyiséggel.Az épületek folytatásában helyezkedik el, külön helyrajzi számon, egy 907nm-es építési telek, ami övezeti besorolása alapján,társasházi lakások építésére alkalmas.Az ingatlan adottságából, elhelyezkedéséből adódóan ,hasznosítására többféle lehetőség van, részletes tájékoztatásért, kérem keressen az elérhetőségeimen.Az ingatlan per,-teher, és igénymentes, rendezett tulajdonviszonnyal rendelkezik.

További adatok

Telekterület: 2 834 m2
Kert mérete: 2 834 m2
Erkély mérete: -
Felszereltség: -
Parkolás: -
Kilátás: -
Egyéb extrák:  
-

Hirdető adatai

Hirdető neve: Otthon Centrum
Kapcsolattartó: Radák Tibor
Hirdető telefonszáma: +36 70 716 9591
Honlap: -