Ház
Origó
HázOrigoval pont a központban

Budapest, VI.kerület


 

Ingatlan adatai

Irányár: 114 000 000 Ft
Típus: lakás (tégla)
Kategória: eladó
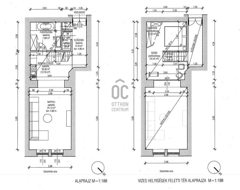
Alapterület: 51 m2
Fűtés: gáz (cirko)
Állapota: -
Szobák száma: 2
Építés éve: -
Szintek száma: -

Részletes leírás

Exkluzív, belvárosi lakást kínálunk megvételre Budapest legelegánsabb sugárútjának közvetlen közelében, a Magyar Állami Operaház és az ötcsillagos W Budapest hotel szomszédságában. Az első emeleti, igényesen és ízlésesen felújított lakás a modern életstílus igényeinek maximálisan megfelel, és befektetésnek is tökéletes. A lakáshoz saját, zárható tároló is tartozik.A lakás jellemzői:-51 nm alapterület+16 nm galéria-410 cm belmagasság, a galérián 185 cm-kondenzációs gáz cirkókazán-valamennyi vezetéket kicserélték-minőségi burkolatok, egyedi megoldások-gépesített konyha-külön wc kézmosóval-tágas fürdőszoba káddal.Az impozáns épületet Ybl Miklós tervezte. Homlokzatát és a belső tereket 2007-ben újították fel, ekkor építették be a liftet is.Közlekedés: -földalatti Opera megálló 1 perc séta-Deák téri metró 5 percre.Az ár a képen látható berendezést is tartalmazza.A lakás remek befektetési lehetőség, hiszen jelenleg is airbnb-ként üzemel.Kérdés vagy megtekintés esetén várom hívását.

További adatok

Telekterület: -
Kert mérete: -
Erkély mérete: -
Felszereltség: -
Parkolás: -
Kilátás: utcai
Egyéb extrák:  
-

Hirdető adatai

Hirdető neve: Otthon Centrum
Kapcsolattartó: Visegrádi Ágnes
Hirdető telefonszáma: +36 70 461 9766
Honlap: -