Ház
Origó
HázOrigoval pont a központban

Budapest, V.kerület


 

Ingatlan adatai

Irányár: 262 752 000 Ft
Típus: lakás (tégla)
Kategória: eladó
Alapterület: 170 m2
Fűtés: gáz (cirko)
Állapota: -
Szobák száma: 5
Építés éve: 1907
Szintek száma: -

Részletes leírás

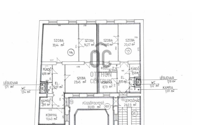
V. kerületben, Váci utca Fővám tér felőli oldalán,karbantartott épületben, legfelső, 3. emeleti,170 m2-es ingatlan eladó.A 3. emelet teljes utcafrontja, 5 ablakkal az ingatlanhoz tartozik.2 db szomszédos lakás 64 m2 és 106 m2 együttese. A 106 m2-es lakás átlagos, a 64 m2-es felújítandó állapotban van.A 2 lakás összenyitásából, egy tágas nappali - étkező, külön - konyha, 4 szoba, 3 fürdős lakásra a képek között talál egy ötlet tervet, de akár 5 szoba, vagy több kisebb lakás is kialakítható.Fűtése gáz cirkó. Az épületben nincs lift.Ajánlom lakásnak, irodának, rendelőnek, befektetésnek.

További adatok

Telekterület: -
Kert mérete: -
Erkély mérete: -
Felszereltség: -
Parkolás: -
Kilátás: utcai
Egyéb extrák:  
-

Hirdető adatai

Hirdető neve: Otthon Centrum
Kapcsolattartó: Lipiczky András
Hirdető telefonszáma: +36 70 716 9196
Honlap: -