Ház
Origó
HázOrigoval pont a központban

Pest megye, Cegléd


 

Ingatlan adatai

Irányár: 889 000 Ft/hó
Típus: iroda
Kategória: kiadó
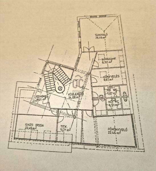
Alapterület: 280 m2
Fűtés: -
Állapota: -
Szobák száma: -
Építés éve: 1996
Szintek száma: -

Részletes leírás

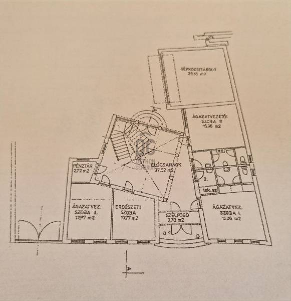
Cegléd szívében, egy kiemelkedő lokációval rendelkező, kiváló állapotú önálló irodaház bérbeadásra kínálkozik, amely ideális választás lehet irodai vállalkozások számára.Az ingatlan 280 m2 nettó alapterületű ,így elegendő helyet biztosít a munkavégzéshez és a kényelmes ügyfélfogadáshoz. A modern kialakítású irodaházban beépített bútorok és szekrények találhatók, amelyek nemcsak esztétikai, hanem praktikus szempontból is hozzájárulnak a mindennapi munkafolyamatok gördülékenységéhez. A környék ellátottsága kiváló, a közeli üzletek, éttermek és szolgáltatások könnyen megközelíthetők, így az itt dolgozók számára minden szükséges kényelem adott.A központi elhelyezkedésnek köszönhetően a cég könnyen elérhető mind a helyi, mind a távolabbi ügyfelek számára.A kitűnő közlekedés lehetővé teszi, hogy az ingatlan gyorsan megközelíthető legyen autóval és tömegközlekedéssel egyaránt. Az ingatlan két garázs és belső parkolóval is rendelkezik, így a parkolás sosem jelent majd problémát. Az ingatlan előtt is a parkolás díjmentes. Az épület világos, tágas terekkel rendelkezik, amelyek ideálisak a kreatív munkafolyamatokhoz. A jövőbeli bővítési lehetőségek is adottak, hiszen az ingatlan más funkciókra is átalakítható, így érdemes szem előtt tartani a hosszú távú terveket. Cegléd nemcsak a gazdasági lehetőségeiről ismert, hanem a kulturális és szabadidős programjairól is. A város kedvező adottságai és a környék csendes, biztonságos légköre ideális környezetet biztosít a munkához és a pihenéshez egyaránt. Az ingatlan bérbeadásával nem csupán egy helyet kínálunk, hanem egy olyan lehetőséget, ahol a vállalkozása szárnyalhat. Amennyiben kérdései merülnének fel az ingatlannal kapcsolatban, vagy szeretné megtekinteni a helyszínt, bizalommal keressen minket. Célunk, hogy Ön megtalálja az ideális irodát, ahol a vállalkozása igazán otthonra találhat.HA FELKELTETTEM ÉRDEKLŐDÉSÉT FORDULJON HOZZÁM BIZALOMMAL! NÉZZÜK MEG EGYÜTT!A hirdetésben szereplő információk a megbízótól származnak. Pontosságukért felelősséget nem vállalunk.Amennyiben hitelre van szüksége irodánkban teljes körű bankfüggetlen hitel ügyintézéssel állunk rendelkezésére.

További adatok

Telekterület: -
Kert mérete: -
Erkély mérete: -
Felszereltség: -
Parkolás: -
Kilátás: -
Egyéb extrák:  
-

Hirdető adatai

Hirdető neve: Otthon Centrum
Kapcsolattartó: Magyar Anikó
Hirdető telefonszáma: +36 70 469 3501
Honlap: -