Ház
Origó
HázOrigoval pont a központban

Pest megye, Törtel


 

Ingatlan adatai

Irányár: 22 900 000 Ft
Típus: ház
Kategória: eladó
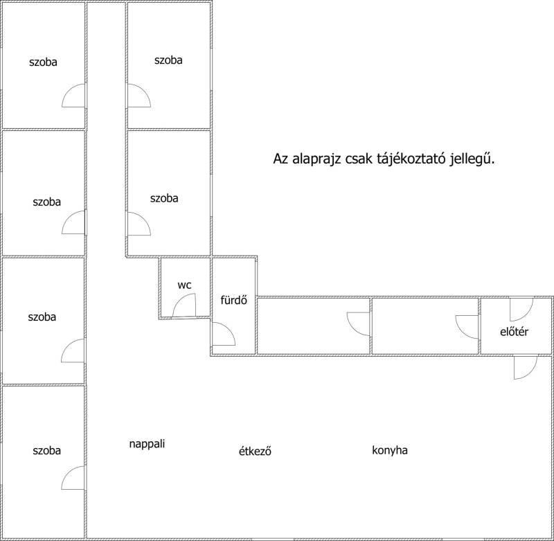
Alapterület: 175 m2
Fűtés: egyéb
Állapota: felújítást igényel
Szobák száma: 5
Építés éve: 1960
Szintek száma: -

Részletes leírás

Eladó családi ház TörtelenTörtel központjában, frekventált helyen 175 nm alapterületű, felújítás alatt álló családi ház eladó.Főbb jellemzők:- 175 nm teljes alapterület- új víz- és villanyvezeték- felújított tető, LINDAB borítással- új ereszcsatorna- vegyes falazat- vezetékes víz, villany és csatorna van- gáz telken belül- a utcafronti homlokzaton 5 cm-es hungarocell szigetelés- az üzlet lakóházzá minősítése folyamatbanAmennyiben a vásárláshoz hitelre is szüksége lesz, bankfüggetlen tanácsadónk ingyenesen tud Önnek segíteni a legkedvezőbb konstrukció kiválasztásában és a folyósítás lebonyolításában.A hirdetésben szereplő információk a megbízótól kapott adatok alapján készültek, pontosságukért felelősséget nem vállalunk.

További adatok

Telekterület: 300 m2
Kert mérete: 300 m2
Erkély mérete: -
Felszereltség: -
Parkolás: -
Kilátás: -
Egyéb extrák:  
-

Hirdető adatai

Hirdető neve: Otthon Centrum
Kapcsolattartó: Kissné Varga Mónika
Hirdető telefonszáma: +36 70 716 9541
Honlap: -