Ház
Origó
HázOrigoval pont a központban

Pest megye, Mogyoród


 

Ingatlan adatai

Irányár: 119 900 000 Ft
Típus: ház
Kategória: eladó
Alapterület: 137 m2
Fűtés: gáz (cirko)
Állapota: -
Szobák száma: 4
Építés éve: 2006
Szintek száma: -

Részletes leírás

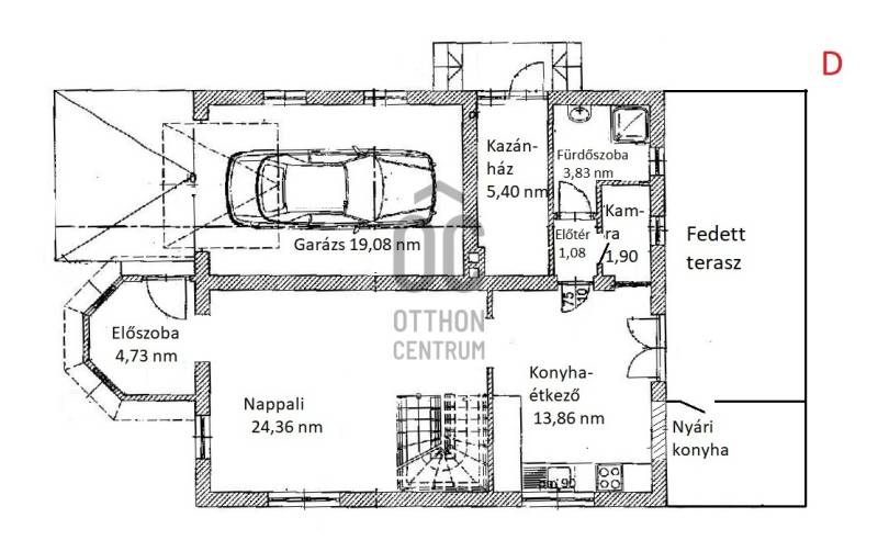
Mogyoródon aszfaltos mellékutcában kínálunk megvásárlásra egy önálló családi házat nagy méretű, 1005 nm-es két utcára nyíló telekkel. Az ingatlan kiváló lehetőség lakhatásra és telephelynek egyaránt, mivel a telek hátsó részen egy 70 nm-es fűthető, szigetelt raktár épület található, melybe a víz, villany és a csatorna is be van vezetve. Itt egy iroda konténer is helyet kapott, mely szinten összközműves. A hátsó utcáról teherautóval is megközelíthető a hátsó telephely. Ezen kívül található még a telken egy 30 nm-es összközműves kis ház, mely felújítás után egy különálló lakás, iroda stb. lehet. A családi ház 2006-ban épült, cserép fedéssel, dryvit szigeteléssel. Belső elosztása a mai modern igényeket maximálisan kielégíti. A földszinten tágas, világos nappali, terasz kapcsolatos konyha-étkező, kamra, zuhanyzós fürdőszoba, előszoba, nagy garázs kapott helyet. A kényelmes lépcsőn jutunk fel az emeletre, ahol 3 nagy szoba, egy nagy fürdőszoba és egy bebútorozott gardrób került kialakításra. A konyha- étkezőből nyílik a hatalmas fedett terasz, ahol egy nyári konyha is található ( vizes blokk itt is van). A terasz alatti pincében bőven van tárolási lehetőség. A ház előtti térkövezett területen több autó is elfér. A kertben egy épített, fedett szaletli épült kemencével. A házban a fűtést gázüzemű kombi cirkó biztosítja, de rendelkezésre áll egy vegyes tüzelésű kazán is. Műanyag nyílászárók, szép burkolatok, szaniterek. Az ingatlan jó állapotú, felújítás nélkül költözhető. Az utcai és a hátsó kapu is elektromos.

További adatok

Telekterület: 1 005 m2
Kert mérete: 1 005 m2
Erkély mérete: 25 m2
Felszereltség: -
Parkolás: -
Kilátás: -
Egyéb extrák:  
-

Hirdető adatai

Hirdető neve: Otthon Centrum
Kapcsolattartó: Sipos Zoltánné
Hirdető telefonszáma: +36 70 469 3031
Honlap: -