Ház
Origó
HázOrigoval pont a központban

Csongrád megye, Szeged


 

Ingatlan adatai

Irányár: 89 000 000 Ft
Típus: ház
Kategória: eladó
Alapterület: 122 m2
Fűtés: gáz (cirko)
Állapota: felújított
Szobák száma: 3
Építés éve: 1981
Szintek száma: -

Részletes leírás

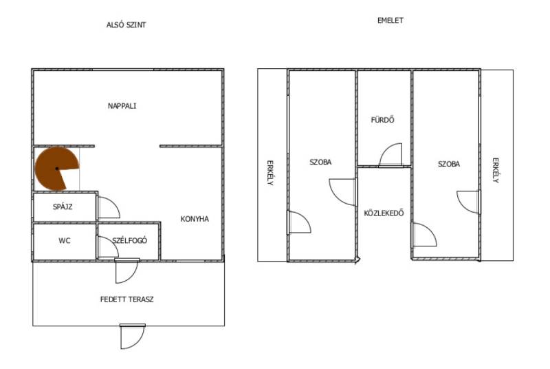
ELADÓ IKERHÁZ ÚJPETŐFITELEPENSzeged dinamikusan fejlődő és kiváló közlekedési adottságokkal rendelkező, de mégis csendes, békés, kertvárosias hangulatot árasztó városrészében eladó ez az 1981-ben épült ikerház egyik fele.Az ingatlan 511 m2-es telken található, a 2 épületrész teljesen tükörképe egymásnak, használati megosztással rendelkezik így hitelezhető is.A jobb oldali rész, ami eladóvá vált 2009-ben teljes körű felújításon esett át, a nyílászárók korszerű hőszigeteltre lettek cserélve, a külső homlokzat 5 cm-es szigetelést kapott, a villamos hálózat is fel lett újítva, 3 fázis is van. A padlástérben elkezdődött még egy szobának a kialakítása, de ezt majd az új tulajdonos igény szerint fejezheti be.A fő épület 122 m2, belső 2 szintes, az alsó részen egy 20 m2-es fedett teraszról jutunk a házba, ahol wc, és spájz található a bejáratnál. az alsó szinten egy nagy közösségi tér lett kialakítva, itt kaphat helyet a konyha ( kialakítása az új tulajdonosra vár) és az étkező illetve a nappali. Az emeleti részen 2 hálószoba, mindkettő erkély kapcsolattal és egy fördőszoba kapott helyet.Az udvar hátsó részében található egy melléképület, szintén magosztva ahogy az ikerház is, itt egy beépített teraszról egy konyhába, abból pedig egy szobába juthatunk, ami akár egy külön lakrésze is lehet idősebb szülőnek, vagy önállósódni vágyó gyermeknek.Minkét lakrész fűtéséről Ariston típusú vadonatúj kazán gondoskodik, radiátoros hőleadókkal.Kiváló választás lehet gyermekes családnak, vagy több generáció összeköltözésére.Az ingatlan tehermentes, rövid határidővel költözhető! NÉZZE MEG AJÁNLATUNKAT SZEMÉLYESEN IS!

További adatok

Telekterület: 256 m2
Kert mérete: 256 m2
Erkély mérete: 25 m2
Felszereltség: -
Parkolás: -
Kilátás: utcai
Egyéb extrák:  
-

Hirdető adatai

Hirdető neve: GDN Ingatlanhálózat
Kapcsolattartó: Szil Gabriella
Hirdető telefonszáma: +36-30-901-0313
Honlap: -