Ház
Origó
HázOrigoval pont a központban

Pest megye, Kiskunlacháza


 

Ingatlan adatai

Irányár: 76 000 000 Ft
Típus: ház
Kategória: eladó
Alapterület: 91 m2
Fűtés: -
Állapota: új
Szobák száma: 4
Építés éve: 2025
Szintek száma: -

Részletes leírás

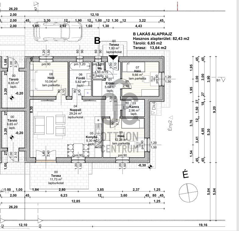
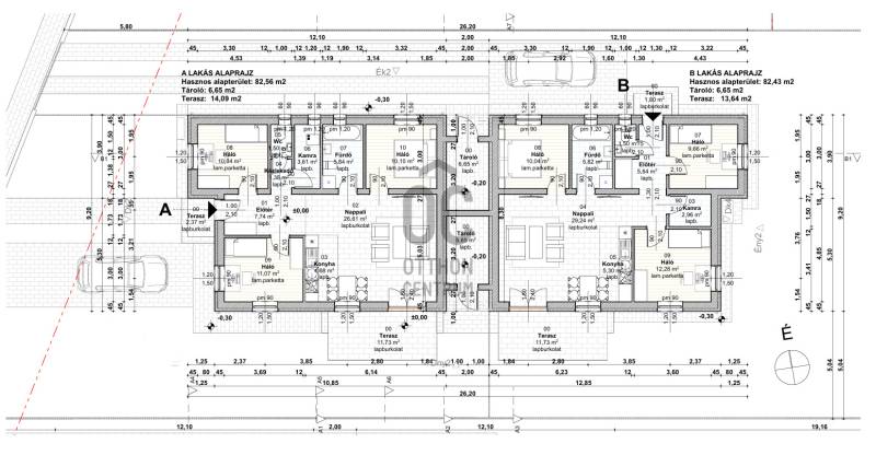
Projekt bemutatásaKiskunlacházán most épülő ikerház eladó!- csak tárolónál kapcsolódik- téglából épül- hőszivattyús fűtés- nappali + 3 szoba- terasz\"A\" lakás: 89,22 nm\"B\" lakás: 91,09 nmHitel, CSOK felvehető! 20%-tól foglalózhatóTovábbi részletekért kérem hívjon!

További adatok

Telekterület: 549 m2
Kert mérete: 549 m2
Erkély mérete: 14 m2
Felszereltség: -
Parkolás: -
Kilátás: -
Egyéb extrák:  
-

Hirdető adatai

Hirdető neve: Otthon Centrum
Kapcsolattartó: Joó Krisztina
Hirdető telefonszáma: +36 70 469 3111
Honlap: -