Ház
Origó
HázOrigoval pont a központban

Pest megye, Kiskunlacháza


 

Ingatlan adatai

Irányár: 71 000 000 Ft
Típus: ház
Kategória: eladó
Alapterület: 89 m2
Fűtés: -
Állapota: új
Szobák száma: 4
Építés éve: 2025
Szintek száma: -

Részletes leírás

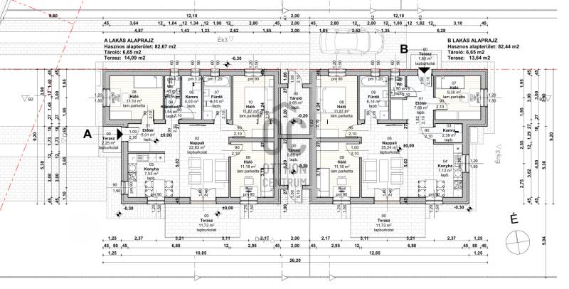
Projekt bemutatásaKiskunlacházán új építésű ikerház eladó- 2025-ben épül- nappali + 3 szobás- saját kert- csak tároló kapcsolatos- hőszivattyús fűtés- várható átadás kb. 2025 3. negyedév\"A\" lakás:88,96 nm\"B\" lakás:89,01 nmCSOK, hitel felvehető20%-tól már most foglalható!Várható átadás kb. 2025 harmadik negyedévTovábbi részletekért kérem hívjon!

További adatok

Telekterület: 360 m2
Kert mérete: 360 m2
Erkély mérete: 14 m2
Felszereltség: -
Parkolás: -
Kilátás: -
Egyéb extrák:  
-

Hirdető adatai

Hirdető neve: Otthon Centrum
Kapcsolattartó: Joó Krisztina
Hirdető telefonszáma: +36 70 469 3111
Honlap: -