Ház
Origó
HázOrigoval pont a központban

Heves megye, Gyöngyös


 

Ingatlan adatai

Irányár: 48 000 000 Ft
Típus: kereskedelmi/ipari ingatlan
Kategória: eladó
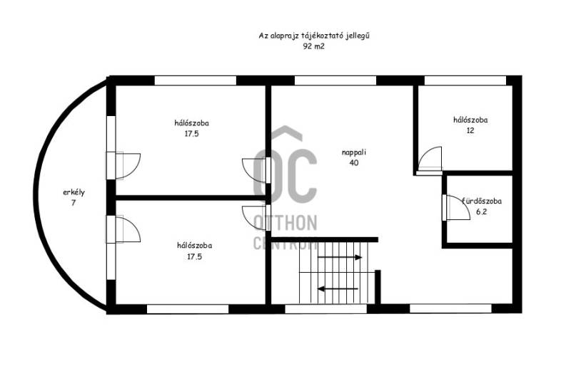
Alapterület: 184 m2
Fűtés: -
Állapota: -
Szobák száma: -
Építés éve: 2007
Szintek száma: -

Részletes leírás

Sokrétű lehetőség Gyöngyös belvárosában Üzleti megoldásra?Akkor ez az ingatlan neked szól!Az 184 nm alapterületű, 2 szintes, 7 szobás, 2 fürdőszobás ház egy 803 nm-es telken helyezkedik el, a Püspöki utcában.Az ingatlan 2004-ben B 30-as téglából épült, még nincs teljesen befejezve, így az új tulajdonosnak lehetősége van a saját ízlése szerint alakítani a lakást.Az ingatlan, akár :-Iradaházként -Jóga vagy tánc stúdiók-Fitnesztermek, edzőtermek,-Szépségszalonok, -Fodrászatok, masszázsszalonok, -Éttermek, kávézók.-Orvosi rendelők: Általános orvosi rendelők, fogászatok, szakorvosi rendelőként is fantasztikus lehetőség! Mint látjuk különböző lehetőségeket kínálnak csak a képzelet szab határt.A közelben található egy közlekedési csomópont, így kitűnő a közlekedés a városban.A környék felkapott jó elhelyezkedése révén ritka ajánlat!Ha szeretnél egy olyan ingatlant, amely lehetőséget ad a saját elképzeléseid megvalósítására, akkor ez az ingatlan neked szól!Keresst bizalommal, ha felkeltette az érdeklődésed!

További adatok

Telekterület: -
Kert mérete: -
Erkély mérete: -
Felszereltség: -
Parkolás: -
Kilátás: -
Egyéb extrák:  
-

Hirdető adatai

Hirdető neve: Otthon Centrum
Kapcsolattartó: Nagy Zoltánné Zsani
Hirdető telefonszáma: +36 70 469 3286
Honlap: -