Ház
Origó
HázOrigoval pont a központban

Tolna megye, Bátaszék


 

Ingatlan adatai

Irányár: 85 000 000 Ft
Típus: kereskedelmi/ipari ingatlan
Kategória: eladó
Alapterület: 326 m2
Fűtés: -
Állapota: -
Szobák száma: -
Építés éve: 1980
Szintek száma: -

Részletes leírás

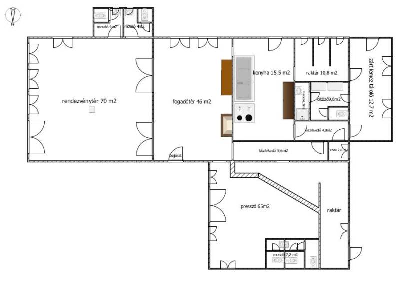
Az ingatlan jelenleg három funkcióra van kialakítva.Utoljára mint motel, rendezvényház konyhával, és italmérés működött.Az összese 326 négyzetméteres épület 2917 m2-es telken fekszik.A telken elegendő hely áll rendelkezésre a parkoláshoz is.Az épület tégla falazatú az italmérő és kiszolgáló helyiségei kivételével. Ez, utólagos hozzáépítés, mely könnyűszerkezetes.Fűtése központi gázfűtés, de a kandalló is működik.A tetőn napelemek lettek elhelyezve, amik jelentősen csökkentik az épület fenntartási költségét.A nyílászárók egy része fa, egy része hőszigetelt műanyag.A konyha alkalmas nagyobb társasági rendezvényeket- akár lakodalmakat is-kiszolgálni.Az emeleten 4 apartman és 4 szoba található.Az ingatlan egy alapos takarítást követően akár használatba is vehető.A bútorzat a vételár részét képezheti.Kedves Ügyfelünk, az ingatlanról videót is készítettünk. Ha ezt a hirdetést az Otthon Centrum weboldalán nézi, akkor a videóra a képek után tud kattintani. Ha egy másik weboldalon találta ezt a hirdetést, kérem nyissa meg az Otthon Centrum weboldalát, kattintson a „Regisztrációs szám keresése” menüpontra, és írja be ezt a regisztrációs számot a keresőbe: UZ017788. Itt meg tudja tekinteni az ingatlanról készült videót. Vagy írjon nekem, és szívesen elküldöm a videót.Ha lát benne fantáziát, ne habozzon!Hívjon és megmutatom!Ha a vásárláshoz hitelre lenne szüksége, kollégánk díjmentes, bankfüggetlen szolgáltatással, személyre szabott ajánlatokkal és teljes körű ügyintézéssel áll rendelkezésére!üzleti ingatlan motel rendezvényház vendéglátás kocsma nagy telek két szintes tégla napelem UZ017788

További adatok

Telekterület: -
Kert mérete: -
Erkély mérete: -
Felszereltség: -
Parkolás: -
Kilátás: -
Egyéb extrák:  
-

Hirdető adatai

Hirdető neve: Otthon Centrum
Kapcsolattartó: Dániel Lilla Anna
Hirdető telefonszáma: +36 70 388 6296
Honlap: -