Ház
Origó
HázOrigoval pont a központban

Somogy megye, Balatonmáriafürdő


 

Ingatlan adatai

Irányár: 47 900 000 Ft
Típus: lakás (tégla)
Kategória: eladó
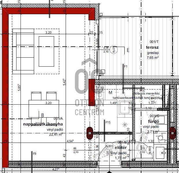
Alapterület: 35 m2
Fűtés: elektromos
Állapota: -
Szobák száma: 1
Építés éve: 2020
Szintek száma: -

Részletes leírás

Balatonmáriafürdőn közvetlenül a Balaton partján eladó egy teljesen átépített, három szintes épület földszinti lakása. A tágas, világos ingatlan ideális választás azok számára, akik a tó közelségét és a nyugodt környezetet keresik, de a fűnyírással nem szeretnének foglalkozni. A lakás elrendezése kényelmes, és a Balaton látványa mindennap élménnyé teszi az ott töltött időt. Jellemzők:- Földszinti elhelyezkedés- 35 nm- Terasz- Közvetlen vízparti közelség- Praktikus elrendezés- Csendes, nyugodt környék- Remek közlekedési lehetőségek- Teljesen felszerelt, bútorozott- Hűtő-fűtő klíma- Kert kapcsolatNe hagyja ki ezt a ritka lehetőséget! Tökéletes választás nyaralónak, vagy állandó lakhatásra egyaránt. További információkért és megtekintésért keressen bizalommal!

További adatok

Telekterület: -
Kert mérete: -
Erkély mérete: 8 m2
Felszereltség: -
Parkolás: -
Kilátás: kertre néző
Egyéb extrák:  
-

Hirdető adatai

Hirdető neve: Otthon Centrum
Kapcsolattartó: Nikitscher-Rigó Diána
Hirdető telefonszáma: +36 70 412 5336
Honlap: -