Ház
Origó
HázOrigoval pont a központban

Pest megye, Budakeszi


 

Ingatlan adatai

Irányár: 179 000 000 Ft
Típus: telek
Kategória: eladó
Alapterület: 1 418 m2
Fűtés: -
Állapota: -
Szobák száma: -
Építés éve: -
Szintek száma: -

Részletes leírás

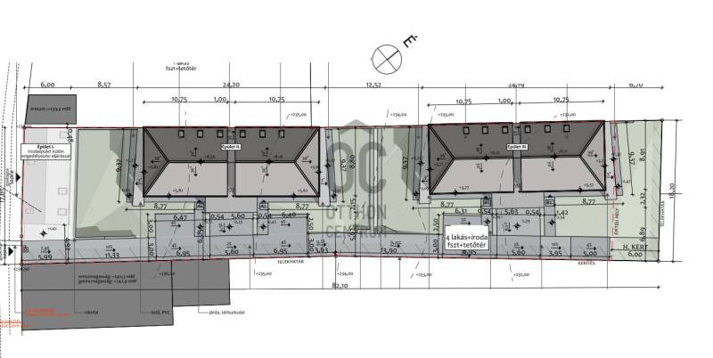
Fedezze fel ezt a kivételes lehetőséget Budakeszi csendes, idilli környezetében, ahol a természet közelsége és a városi élet kényelme találkozik. Az ingatlan, amelyet most bemutatunk, egy 1418 négyzetméteres telek, mely a lakóövezet szívében helyezkedik el. Különösen ajánlom:Fejlesztőknek, mivel a környék folyamatosan fejlődik, és a kereslet növekvő tendenciát mutat. Mivel a telek rendelkezik érvényes építési engedéllyel az építkezés azonnal kezdhető, ahogy az ingatlanok értékesítése is!Közművek:Ideiglenes áram, víz és csatorna a telken, gáz közvetlenül a telek előtt található.a telken bontandó épület található.A tulajdonos cég.A telek 1413 m2 és a projekt keretében 3 épületben: 1 iroda épület + kettő ikerház megépítése tervezett, benne 4 lakással.Az ikerházak úgy kerültek megtervezésre, hogy az életterek a lehető legjobban el legyenek egymástól szeparálva, szinte csak a garázsfalak találkoznak egymással és dupla falazat megépítése tervezett.építési paraméterek:Főépület lakásszám =T/350zártsorú beépítési módbeépíthetőség 40%zöldfelület 30%építménymagasság 6 mI. épületiroda84,24 m2+garázsII. épület1. lakás Lakás: 143 m2Garázs: 17,25 m2Terasz: 15,47 m2Telek: 286 m22. lakás:Lakás: 143 m2Garázs: 17,25 m2Terasz: 15,47 m2Telek: 253 m2III. épület3. lakás:Lakás: 143 m2Garázs: 17,25 m2Terasz: 15,47 m2Telek: 255,5 m24. lakás:Lakás: 143 m2Garázs: 17,25 m2Terasz: 15,47 m2Telek: 307,9 m2A lakások 1 db gépjárműbeállóval+1 felszíni beállóval és kizárólagos használatú, saját kerttel rendelkeznek. Az épület optimális, DNY-i tájolása, kompakt tömegformálása és kiváló hőszigetelése biztosítják az alacsony energiafelhasználást.Az ingatlan csendes, mégis központi részen helyezkedik el. Buszmegálló, boltok, óvoda, bölcsőde, iskola, játszótér gyalogosan rövid idő alatt elérhető.Az ingatlanpiac folyamatosan változik, így érdemes mihamarabb lépni, hogy ne maradjon le erről a remek lehetőségről!

További adatok

Telekterület: 1 418 m2
Kert mérete: -
Erkély mérete: -
Felszereltség: -
Parkolás: -
Kilátás: -
Egyéb extrák:  
-

Hirdető adatai

Hirdető neve: Otthon Centrum
Kapcsolattartó: Arany Bálint
Hirdető telefonszáma: +36 70 388 6116
Honlap: -