Ház
Origó
HázOrigoval pont a központban

Szabolcs-Szatmár-Bereg megye, Vásárosnamény


 

Ingatlan adatai

Irányár: 13 500 000 Ft
Típus: ház
Kategória: eladó
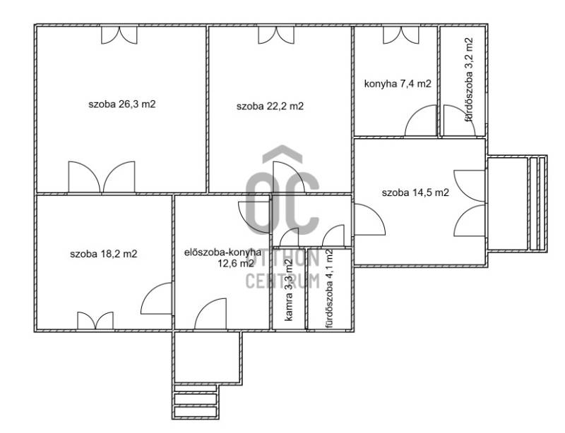
Alapterület: 115 m2
Fűtés: gáz (konvektor)
Állapota: felújítást igényel
Szobák száma: 4
Építés éve: 1960
Szintek száma: -

Részletes leírás

Vásárlók figyelem! Önöknek kínálunk egy igazán különleges lehetőséget Vásárosnamény szívében, Szabolcs-Szatmár-Bereg vármegyében. Ez a felújítandó ház nem csupán egy ingatlan, hanem egy új élet kezdetének színhelye lehet, ahol megvalósíthatják álmaikat, legyen szó saját otthonról vagy befektetési céllal történő vásárlásról. Az ingatlan alapterülete nettó 115 nm, amely 4 tágas szobát és 2 fürdőszobát kínál, így ideális választás lehet családok, fiatal párok vagy akár baráti közösségek számára is. A házhoz tartozó nagy telek lehetőséget ad arra, hogy saját kertet alakítsanak ki, ahol pihenhetnek, kertészkedhetnek, vagy akár egy kis zöldségeskertet is létrehozhatnak. A fűtés gázkonvektorral megoldott, amely biztosítja a megfelelő komfortot a hidegebb hónapokban is. Vásárosnamény városa gazdag kulturális és történelmi értékekben, a közeli természetvédelmi területek pedig remek lehetőséget kínálnak a szabadidős tevékenységekre, mint például a túrázás vagy a kerékpározás. A város közlekedési lehetőségei is kedvezők, hiszen az autóval könnyen megközelíthető főbb útvonalak mellett a tömegközlekedés is biztosított, így a közeli települések és városok is könnyen elérhetőek. A biztonság szempontjából Vásárosnamény egy barátságos, közösségi szellemű település, ahol a szomszédok ismerik egymást, és ahol a családok biztonságban érezhetik magukat. Ez az ingatlan nem csupán egy ház, hanem egy lehetőség arra, hogy egyedi elképzeléseiket valósítsák meg, és egy olyan helyen éljenek, ahol a természet közelsége és a városi élet előnyei egyaránt megtalálhatóak. Amennyiben felkeltette érdeklődését ez a remek lehetőség, keressen bizalommal kérdéseivel.Vevő Ügyfeleink részére, minden szolgáltatásunk intézése díjmentes!Az ingatlanról készült videót megtekintheti :http://youtu.be/jQ3VXc1XHGA

További adatok

Telekterület: 1 614 m2
Kert mérete: 1 614 m2
Erkély mérete: -
Felszereltség: -
Parkolás: -
Kilátás: -
Egyéb extrák:  
-

Hirdető adatai

Hirdető neve: Otthon Centrum
Kapcsolattartó: Gyöngyösi Sándor
Hirdető telefonszáma: +36 70 469 3486
Honlap: -